Unbeendet Küche für Neubau in Dachgeschosswohnung

FelixWillKüche

Mitglied
Beiträge
2
Küche für Neubau in Dachgeschosswohnung

Hallo zusammen,

wir sind komplette Küchenneulinge und ziehen in Kürze in eine Neubauwohnung ohne Küche. Diverse Online-Ratgebern empfehlen sich einen guten Plan zu machen, um die von den Küchenstudios genannten Preise besser einordnen zu können. Bevor wir mit unseren Fragen beginnen ein paar Anmerkungen zu den angehängten Dateien:

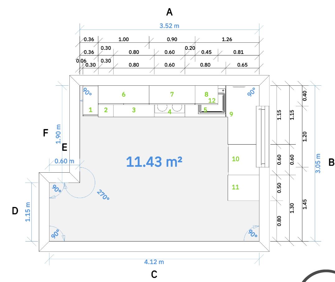
Die Position der Anschlüsse kann dem Foto aus der Wohnung entnommen werden (Horizontale Positionierung ist unbekannt, vertikal befinden sich die unteren Steckdosen 27cm über dem Boden, die mittleren 108cm und die obersten 207cm).

Leider sind wir auf das Küchenforum gestoßen, nachdem wir mit dem Planungstool von Häcker -Küchen gestartet haben. Leider hatten wir mit dem Programm ein paar Schwierigkeiten:
-Die Spüle soll eigentlich rechts vor oder neben dem Fenster sein. Die Spülmaschine soll sich neben der Spüle in einem Unterschrank befinden.
-Wir wollen Griffe an den Schränken und Schubladen, haben es leider im Programm nicht abbilden können.
-Über dem Herd ist ein Dunstabzug geplant. Im Programm gibt es nur einen 'Dunstabzugsoberschrank für Flachschirmhaube'. (macht das Sinn?)


Andere Details zur Planung:
-Die Kühlgefrierkombination befindet sich freistehend in der Nische links (siehe Grundriss).
-Der hohe Schrank links ist ein Apothekerschrank
- Wir wollen glatte weiße Fronten, silberne Griffe und warme Holzoptik für Arbeitsfläche und anderen Details (Apothekerschrank, evtl. Rückwandverkleidung, ...)


Konkrete Fragen:
- Die Wohnung verfügt über eine Abluftschacht in der rechten Außenwand (siehe Foto Anschlüsse). Für uns stellt sich jedoch die Frage ob Abluft überhaut die bessere Lösung ist? Wir haben sehr unterschiedliche Meinungen gehört. Auch die Auswirkung der technischen Umsetzung einer Ablufthaube auf Stauraum und Kosten sind uns dabei nicht klar. Alternative Umluft trotz vorhandenen Schachts besser?

- Ist die Spüle vor dem Fenster realisierbar wenn das Fenster sich noch öffnen lassen soll (zb. durch geschickte Positionierung des Wasserhahns oder einen niedrigen Hahn)? Alternativ haben wir überlegt einen Eckspülschrank zu benutzten, konnten aber auf die schnelle keine Hersteller ausfindig machen. Hat jemand damit Erfahrung?

-Wie ist es generell mit den Wasseranschlüssen? Ist bei einer Eckspüle der Unterschrank noch nutzbar (z.b. Mülleimer). Müssen bei Positionierung der Spüle im Fensterbereich die Leitungen durch die Schränke verlegt werden, sodass diese Stauraum verlieren?

- Wir sind uns unsicher bezüglich der Rückwandverkleidung hinter der Arbeitsfläche. Sicher ist keine Fliesen. Was kostet etwa eine Holzoptik (siehe Referenzbild)? Wär zb. das Streichen mit wasserabweisender Farbe eine billige Alternative?

- Auf der linken Seite ist ein Spalt vom 6cm zu sehen. Wie wird man sowas los? Müssen hier jeweils ein Ober- und Unterschrank angepasst werden? Wie schlägt sich das auf den Preis nieder?

Generell freuen wir uns natürlich über jegliche Anmerkungen und Empfehlungen die Ihr habt. Vielen Dank fürs Durchlesen und hoffentlich auch für Eure Unterstützung!

Beste Grüße
Mario und Fabienne

Checkliste zur Kuechenplanung

Personenkriterien und Ergonomie
Anzahl Personen im Haushalt:
2
Davon Kinder: keine
Körpergrößen aller Hauptbenutzer in cm (wegen Arbeitshoehe): 168, 178
Welche Arbeitshöhe ist angedacht (in cm)?: 92

Gebäudekriterien
Art des Gebäudes:
Neu-/Umbau > Planänderungen nicht möglich, Miete
Bruestungshöhe des Fensters (in cm): 105
Fensterhöhe (in cm): 200
Raumhöhe in cm: 280
Heizung: Fußbodenheizung
Sanitäranschlüsse: fix (Bitte Position im Grundriss vermaßt angeben)

Einbaugerätekriterien
Ausführung Kühlgerät:
Stand-Alone bis 60cm Breite
Einbaukühlgerät Größe: N. a.
Ausführung Tiefkühl (TK)-Gerät: Nicht erforderlich bzw. steht woanders
Dunstabzugshaube: Umluft
Hochgebauter Backofen : nein
Geplante Heißgeräte: Einbaumikrowelle, Backofen
Hochgebauter Geschirrspüler : nein
Art des Kochfeldes: N. a.
Kochfeldbreite (ca. in cm): 60

Sitzmöglichkeiten
Sitzmöglichkeit in der Küche / im Küchenbereich:
Separater Tisch
Sitzmöglichkeit: Für wieviel Personen?: nein
Sitzmöglichkeit: Tisch - wenn gesonderter Tisch oder offene Küche: Keiner
Gewünschte oder vorhandene Tischgröße:
Wofür soll der Sitzplatz in der Küche genutzt werden und wie häufig:

Stauraum-Planung
Was steht auf der Arbeitsplatte oder soll dort stehen?:
Wasserkocher, Messerblock
Welche weiteren Küchenmaschinen müssen in der Küche untergebracht werden: Küchenmaschine, Handrührgerät, Mixer, Pürierstab
Was soll in der Küche außer den Standards untergebracht werden: Geschirr komplett (nichts in Ess-/Wohnzimmer)
Welchen Stauraum gibt es sonst noch: Speisekammer

Kochgewohnheiten
Was/wie wird gekocht? (Alltagsküche, Menüs, Snacks usw):
Alltagsküche, Vorkochen für die Woche
Wie häufig wird gekocht: (fast) täglich 1x warm
Wird alleine gekocht? Oder auch gemeinsam? Mit und für Gäste?: Gemeinsam, auch mit Gästen

Spülen und Müll
Spülenform:
1 Becken mit Abtropffläche
Welche Mülltrennung soll in der Küche vorgehalten werden: Altglas, Altpapier, Biomüll, Gelber Sack Müll, Restmüll

Sonstiges
Steht schon ein Küchenhersteller fest oder wird bevorzugt:
Nein, untere-Mittlere Preisklasse
Steht schon ein Gerätehersteller fest oder wird bevorzugt: Nein, mittlere Preisklasse
Küchenstil: Klassisch
Was stört an der bisherigen Küche und was soll die neue Küche unbedingt können? Warum?:
Preisvorstellung (Budget):
4000-6000 (aber keine Ahnung was realistisch ist)

Angehängte Dateien
 

Anhänge

  • Bemaßter Grundriss.JPG
    Bemaßter Grundriss.JPG
    75 KB · Aufrufe: 120
  • Foto Anschlüsse.JPG
    Foto Anschlüsse.JPG
    66,5 KB · Aufrufe: 120
  • Grundriss Wohnung.JPG
    Grundriss Wohnung.JPG
    105,6 KB · Aufrufe: 125
  • Häcker-Planung-3D.JPG
    Häcker-Planung-3D.JPG
    75,4 KB · Aufrufe: 120
  • Häcker-Planung-Vogelperspektive.JPG
    Häcker-Planung-Vogelperspektive.JPG
    47,8 KB · Aufrufe: 114
  • Beispiel Holzverkleidung Rückwand.jpeg
    Beispiel Holzverkleidung Rückwand.jpeg
    110,2 KB · Aufrufe: 117
Herzlich willkommen, @FelixWillKüche,

Dachgeschosswohnung, aber keine Dachschrägen im Küchenbereich, das ist schon mal gut!

Gleich vorweg: das Budget ist knapp für eine Küche mit allen Geräten. Da darf man sich leider nicht von den Werbeblättern täuschen lassen, das sind Lockangebote.
... Spülmaschine ... neben der Spüle in einem Unterschrank
Ein Geschirrspüler ist selber die ganzen 60cm (oder 45cm) breit und steht selber auf dem Boden. Er bekommt also nur eine Front vorne drauf und die Sockelblende läuft vor seinem eigenen Sockel durch.

Die Hauptarbeitsfläche ist möglichst zwischen Kochfeld und Spüle, daher wäre es wirklich angebracht, die Spüle an die Fensterwand zu setzen.

Grifflos ist teurer, von daher ist es eine gute Entscheidung Fronten mit Griffen zu nehmen.

Arbeitsplatte und Nischenrückwand in holzfarbener Nachbildung ist gut und günstig*. Bei der Arbeitsplatte auf eine leichte Strukturierung achten, auf ganz glatt sieht man sehr bald
Microkratzer.
(*Hat meine Küche zum Teil auch, siehe Link unten)

Die übrigen 6cm sind sogar gut, denn man braucht immer eine Blende zur Wand hin, da Wände quasi nie 100% grade verlaufen und Ecken quasi nie exakt 90 Grad Winkel besitzen.


Sind die Maße korrekt?
Planoben 352cm breit, Kochfeld- und DAH-Anschlüsse genau mittig
Planrechts 40 Wand - 120 Fenster - Wand ..., Wasseranschluss nicht weiter als 50cm aus der Ecke heraus.
 
Hallo Mario und Fabienne,
zu euren Fragen:

Abluft ist in der Regel Kostengünstiger, wartungsfreundlicher und effektiver als Umluft. Ihr braucht keine Kohlefilter, die regelmäßig getauscht werden müssen. Das Rohr könnte ohne Stauraumverlust oberhalb der Oberschränke zur Abluftöffung verlegt werden. Wenn es ein sehr gut gedämmter Neubau ist, müsst ihr für Zuluft sorgen, wenn die Ablufthaube an ist.

Zur Spülenposition: Aktuell habt ihr ja einen Eckschrank oben rechts eingeplant. Das heißt, der Wasseranschluss würde in diesem Schrank liegen genau wie die Spüle mit Armatur vor dem linken Fensterflügel. Das ist gut so, denn der Wasseranschluss muss im Spülenschrank sein und auch zugänglich sein. In diesem Schrank werden dann auch Rohre, Siphon und die Schläuche zur Spülmaschine sein, und den Stauraum etwas vermindern, aber das ist immer so im Spülenschrank. Man kann dort trotzdem hinter der Schranktür Mülleimer stellen, die müssen dann halt rausgenommen werden, wenn man was an den Rohren machen muss. Wenn es euch reicht, nur den rechten Fensterflügel zu öffnen, könnt ihr jede Armatur wählen. Wenn nicht, könnt ihr eine niedrige Armatur wählen, vorher noch messen, wie groß der Abstand zwischen Boden und Unterkante Fensterflügel ist. Bei der Brüstungshöhe von 105 und Arbeitshöhe 92 cm könnte das klappen. Oder ihr nehmt eine umklappbare Vorfensterarmatur.

Euer Budget ist sehr knapp. Ich würde daher auf den 30er Apothekerschrank verzichten. Die sind sehr teuer, gehen gerne mal kaputt und bieten nicht besonders viel Stauraum. Ein 60 cm breiter Unterschrank mit 3 oder 4 Auszügen bietet mehr Stauraum als ein 30 cm Apothekerschrank. Statt der beiden 30er Schränke würde ich oben links einen 60 cm breiten Unterschrank stellen. Die Fronten würde ich in Melaminharz nehmen, das ist günstig und robust. Die Griffe, der freistehende Kühlschrank und das Herdset sind sehr gute Entscheidungen zum Kosten sparen. Ihr könntet auch in die Nische neben den freistehenden Kühlschrank noch einen Hochschrank oder Regal für Vorräte stellen, ggf. auch nicht als Küchenmöbel sondern in der Optik der Wohnzimmermöbel (die sind in der Regel günstiger als Küchenschränke vom Küchenhersteller).

Die anderen Fragen hat @menorca ja schon beantwortet.

lg
Juli
 
Hallo,

hast du mal bis Mitte Abluftloch ab Boden gemessen? Ich kann mir das gewöhnlich selbst ausrechnen, aber deine Angaben zum Fenster stimmen nicht, wovon ich es ableite. 230-235?

In dem Raumplan sieht man links unten die Steckdose für den KS. Auch wenn er freistehend ist, würde ich ihn dort hinstellen. Wenn ihr noch keinen habt, solltest du einen nehmen, der keinen Wandabstand braucht, slim line oder wie die heißen.

Gibt es in der Nische planlinks Steckdosen?
 
Zuletzt bearbeitet:
Hallo zusammen,

vielen Dank euch allen auf jeden Fall schon mal für eure sehr hilfreichen Einordnungen!! Wir versuchen kurz auf die verschiedenen Fragen einzugehen:

@menorca Die Maße stimme so wie du sie gelesen hast :-)

@Evelin Gemessen haben wir es leider nicht. Die Decken sind aber relativ hoch (~280cm) die Mitte des Abluftlochs dürfte also so 250 über dem Boden sein? Die Steckdose in der Nische ist in Echt so vorhanden wie du sie am Raumplan erspäht hast.
 
kannst so stellen
Screenshot 2025-02-11 161819.jpg

die OS dann bis knapp unters ABluftloch, das Rohr auf die OS, siehst du in Wirklichkeit nicht.

Rechts den Spüleneckschrank, dann der GSP und am Ende noch einen Schrank, Breite nach Wunsch, Auszüge oder nur Fachböden.

Und in die planlinke Nische 2 x HS, in einen die Mikro, Höhe nach Wunsch und Geldbeutel.
 

Ähnliche Beiträge

Neff Hausgeräte Ballerina Küchen Blum Bewegungstechnologie Weibel - Intelligente Küchenlüftung

Neff Spezial

Blum Zonenplaner

Weibel Abluft-Tuning

Weibel Abluft-Tuning
Zurück
Oben