Bania
Mitglied
- Beiträge
- 1
Küche für Neubau EFH
Guten Tag Gemeinde, ich habe die letzten Wochen gefühlt jeden Thread hier im Forum gelesen und habe viele nützliche Dinge in meiner Planung berücksichtigt. Ich dachte eigentlich ich komme klar ohne euch zu nerven.
Vor 2 Tagen habe ich dann auch eine Küche wie ich sie mir im Kopf und auf Papier geplant habe bestellt. Der küchenplaner im Studio war mir leider keine große Hilfe, aber ich wusste ja was ich wollte, habe schließlich die letzten Wochen nichts anderes gemacht als Küche 
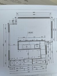
wie oben schon geschrieben, war ich mit meinem Berater nicht ganz zufrieden, also nerve ich euch doch nochmal, so lang ich noch etwas ändern kann. Ich kriege im Laufe der Woche nochmal die ganzen Ansichten per Email, stelle ich dann auch nochmal rein hier.
hier noch ein paar Infos zur Küche:
Hersteller: Musterring (Störmer )
Fronten: 207 Glas Nero grau satiniert mit Metall kupferfarbenen Kanten
und MR3600 651 Rot (nicht wirklich rot, aber heißt halt so)
Griffleisten auch Metall kupferfarbene
Sockel auch Nero grau
Arbeitsplatte Star Galaxy 2cm
Geräte:
Backofen Miele H 7860 BP
Kochfeld Miele KMDA 7634 FL1
Geschirrspüler Miele G 7360 SCVi
Kühlschrank nehme ich meinen side by side mit.
im Grunde bin ich eigentlich ganz zufrieden mit der Planung, aber bin halt nicht vom Fach und habe Angst das ich irgendwas übersehen habe oder blöd geplant habe. Für Planungsfehler ist die Küche einfach zu teuer. Eingeplant waren maximal 20.000€, habe ich natürlich nicht geschafft. Drum würden Fehler gleich doppelt wehtuen.
Ich hoffe ich habe nichts vergessen. Viel Dank für eure Zeit, ihr seid super
Checkliste zur Küchenplanung
Personenkriterien und Ergonomie
Anzahl Personen im Haushalt: 3
Davon Kinder: 1
Körpergrößen aller Hauptbenutzer in cm (wegen Arbeitshöhe ): 165 und 182cm
Welche Arbeitshöhe ist angedacht (in cm)?: 90
Gebäudekriterien
Art des Gebäudes: Neu-/Umbau > Planänderungen möglich, Eigentum
Brüstungshöhe des Fensters (in cm): 90
Fensterhöhe (in cm): 119
Raumhöhe in cm: 250
Heizung: Fußbodenheizung
Sanitäranschlüsse: vollkommen variabel
Einbaugerätekriterien
Ausführung Kühlgerät: Side by Side (ca. 90cm breit)
Einbaukühlgerät Größe: N. a.
Ausführung Tiefkühl (TK)-Gerät: N. a.
Dunstabzugshaube: N. a.
Hochgebauter Backofen : ja
Geplante Heißgeräte: Backofen
Hochgebauter Geschirrspüler : nein
Art des Kochfeldes: Induktion
Kochfeldbreite (ca. in cm): 80
Sitzmöglichkeiten
Sitzmöglichkeit in der Küche / im Küchenbereich: Separater Tisch
Sitzmöglichkeit: Für wieviel Personen?: N. a.
Sitzmöglichkeit: Tisch - wenn gesonderter Tisch oder offene Küche: Vorhandener Tisch
Gewünschte oder vorhandene Tischgröße: 90x160
Wofür soll der Sitzplatz in der Küche genutzt werden und wie häufig:
Stauraumplanung
Was steht auf der Arbeitsplatte oder soll dort stehen?: Küchenmaschine
Welche weiteren Küchenmaschinen müssen in der Küche untergebracht werden: N. a.
Was soll in der Küche außer den Standards untergebracht werden: N. a.
Welchen Stauraum gibt es sonst noch: Geschirr/Gläserschrank im Wohn-/Esszimmer, Hauswirtschaftsraum
Kochgewohnheiten
Was/wie wird gekocht? (Alltagsküche, Menüs, Snacks usw): Alltagsküche, Brot, Kuchen. Bei gutem Wetter auch mehrmals die Woche auf dem Grill
Wie häufig wird gekocht: (fast) täglich 1x warm
Wird alleine gekocht? Oder auch gemeinsam? Mit und für Gäste?: Meist allein
Spülen und Müll
Spülenform: 1 Becken ohne Abtropffläche
Welche Mülltrennung soll in der Küche vorgehalten werden: Gelber Sack Müll, Restmüll
Sonstiges
Steht schon ein Küchenhersteller fest oder wird bevorzugt: Musterring
Steht schon ein Gerätehersteller fest oder wird bevorzugt: Miele
Küchenstil: Grifflose Küche
Was stört an der bisherigen Küche und was soll die neue Küche unbedingt können? Warum?:
Preisvorstellung (Budget): 28.500
Angehängte Dateien
Guten Tag Gemeinde, ich habe die letzten Wochen gefühlt jeden Thread hier im Forum gelesen und habe viele nützliche Dinge in meiner Planung berücksichtigt. Ich dachte eigentlich ich komme klar ohne euch zu nerven.
Vor 2 Tagen habe ich dann auch eine Küche wie ich sie mir im Kopf und auf Papier geplant habe bestellt. Der küchenplaner im Studio war mir leider keine große Hilfe, aber ich wusste ja was ich wollte, habe schließlich die letzten Wochen nichts anderes gemacht als Küche
wie oben schon geschrieben, war ich mit meinem Berater nicht ganz zufrieden, also nerve ich euch doch nochmal, so lang ich noch etwas ändern kann. Ich kriege im Laufe der Woche nochmal die ganzen Ansichten per Email, stelle ich dann auch nochmal rein hier.
hier noch ein paar Infos zur Küche:
Hersteller: Musterring (Störmer )
Fronten: 207 Glas Nero grau satiniert mit Metall kupferfarbenen Kanten
und MR3600 651 Rot (nicht wirklich rot, aber heißt halt so)
Griffleisten auch Metall kupferfarbene
Sockel auch Nero grau
Arbeitsplatte Star Galaxy 2cm
Geräte:
Backofen Miele H 7860 BP
Kochfeld Miele KMDA 7634 FL1
Geschirrspüler Miele G 7360 SCVi
Kühlschrank nehme ich meinen side by side mit.
im Grunde bin ich eigentlich ganz zufrieden mit der Planung, aber bin halt nicht vom Fach und habe Angst das ich irgendwas übersehen habe oder blöd geplant habe. Für Planungsfehler ist die Küche einfach zu teuer. Eingeplant waren maximal 20.000€, habe ich natürlich nicht geschafft. Drum würden Fehler gleich doppelt wehtuen.
Ich hoffe ich habe nichts vergessen. Viel Dank für eure Zeit, ihr seid super
Checkliste zur Küchenplanung
Personenkriterien und Ergonomie
Anzahl Personen im Haushalt: 3
Davon Kinder: 1
Körpergrößen aller Hauptbenutzer in cm (wegen Arbeitshöhe ): 165 und 182cm
Welche Arbeitshöhe ist angedacht (in cm)?: 90
Gebäudekriterien
Art des Gebäudes: Neu-/Umbau > Planänderungen möglich, Eigentum
Brüstungshöhe des Fensters (in cm): 90
Fensterhöhe (in cm): 119
Raumhöhe in cm: 250
Heizung: Fußbodenheizung
Sanitäranschlüsse: vollkommen variabel
Einbaugerätekriterien
Ausführung Kühlgerät: Side by Side (ca. 90cm breit)
Einbaukühlgerät Größe: N. a.
Ausführung Tiefkühl (TK)-Gerät: N. a.
Dunstabzugshaube: N. a.
Hochgebauter Backofen : ja
Geplante Heißgeräte: Backofen
Hochgebauter Geschirrspüler : nein
Art des Kochfeldes: Induktion
Kochfeldbreite (ca. in cm): 80
Sitzmöglichkeiten
Sitzmöglichkeit in der Küche / im Küchenbereich: Separater Tisch
Sitzmöglichkeit: Für wieviel Personen?: N. a.
Sitzmöglichkeit: Tisch - wenn gesonderter Tisch oder offene Küche: Vorhandener Tisch
Gewünschte oder vorhandene Tischgröße: 90x160
Wofür soll der Sitzplatz in der Küche genutzt werden und wie häufig:
Stauraumplanung
Was steht auf der Arbeitsplatte oder soll dort stehen?: Küchenmaschine
Welche weiteren Küchenmaschinen müssen in der Küche untergebracht werden: N. a.
Was soll in der Küche außer den Standards untergebracht werden: N. a.
Welchen Stauraum gibt es sonst noch: Geschirr/Gläserschrank im Wohn-/Esszimmer, Hauswirtschaftsraum
Kochgewohnheiten
Was/wie wird gekocht? (Alltagsküche, Menüs, Snacks usw): Alltagsküche, Brot, Kuchen. Bei gutem Wetter auch mehrmals die Woche auf dem Grill
Wie häufig wird gekocht: (fast) täglich 1x warm
Wird alleine gekocht? Oder auch gemeinsam? Mit und für Gäste?: Meist allein
Spülen und Müll
Spülenform: 1 Becken ohne Abtropffläche
Welche Mülltrennung soll in der Küche vorgehalten werden: Gelber Sack Müll, Restmüll
Sonstiges
Steht schon ein Küchenhersteller fest oder wird bevorzugt: Musterring
Steht schon ein Gerätehersteller fest oder wird bevorzugt: Miele
Küchenstil: Grifflose Küche
Was stört an der bisherigen Küche und was soll die neue Küche unbedingt können? Warum?:
Preisvorstellung (Budget): 28.500
Angehängte Dateien
Anhänge
-
DE5FB211-B810-4CE8-B986-A5F74BE2AE08.jpeg98,3 KB · Aufrufe: 186 -
CB4D8E8B-A2F6-41F7-9D2D-1F83C64737E9.jpeg91,9 KB · Aufrufe: 185 -
84957825-6EC3-4EF7-8B2F-03BDB5327720.jpeg34,4 KB · Aufrufe: 217 -
3C41229C-6395-48ED-99DD-9FF6486C68DD.jpeg132,9 KB · Aufrufe: 183 -
1657F9FE-8D74-4CD4-94B0-8DABE1C7885A.jpg69,3 KB · Aufrufe: 178



