Unbeendet Kleine Küchenherausforderung

Schmunzelbrühe

Mitglied
Beiträge
3
Kleine Küchenherausforderung

Liebes Forum,

zunächst einmal ganz großes Lob an alle, die hier so eifrig unterstützen und mit Expertise und guten Vorschlägen zur Seite stehen. Wir freuen uns, dieses Forum gefunden zu haben und sind gespannt, was euch noch zu unserer kleinen "Küchenherausforderung" einfällt.

Wir haben ein kleines Häuschen aus den 60ern, im Original mit winzig kleiner Küche, die wir so nicht behalten wollten. Nach dem Durchspielen diverser Optionen (offene Küche, wo können wir essen, etc.) haben wir uns entschlossen, eine der Küchenwände zu versetzen, wodurch in der Tiefe etwa 1m dazugewonnen wurde. Schattenseite ist, dass es sich dabei um eine tragende Wand handelte und die Decke folglich mit einem Stahlträger abgestützt werden muss, der auf einem etwa 25x25cm (BxT) großen Relikt der ursprünglichen Wand aufliegt. Wie ihr euch vorstellen könnt, sind diese Auflieger immer im Weg.

Für uns wichtige Punkte bei der Küchenplanung :

- Da an einer Seite der Eingang plus Mauervorsprung liegt und auf der anderen Seite das Fenster plus Terrassentür gibt es eigentlich nur 2 Wände, die für eine Küche in Frage kommen und damit eine L-Form.
- Wir möchten in der Küche essen und das gern am Fenster
- Der Ofen soll unbedingt höhergestellt werden, auch wenn dadurch Arbeitsfläche verloren geht

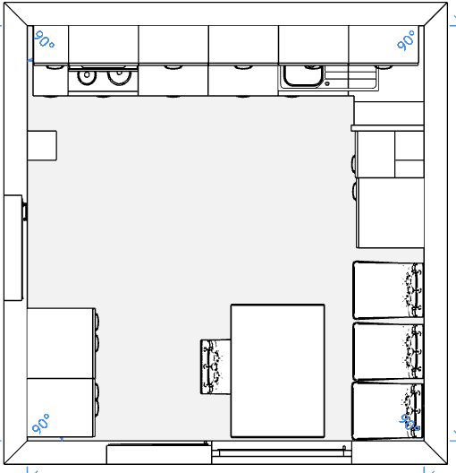
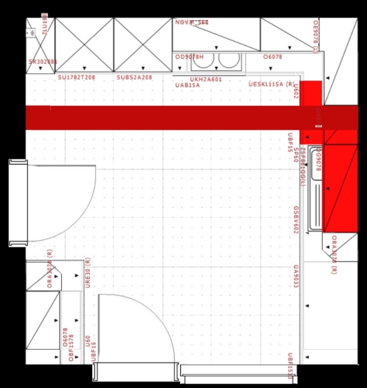
Erläuterungen zu unserem Modell (von links nach rechts).
Das Bord/ die Fächer ganz links sind deshalb gewählt, weil in der Ecke nichts mit einer Drehtür sein kann, da diese aufgrund des Wandvorsprungs sonst nicht richtig geöffnet werden könnte. Daneben Kühl- und Gefrierschrank (Griff soll auf die andere Seite als im ALNO -Bild dargestellt).
Die Arbeitsfläche links vom Herd beträgt nur ca. 15cm - nicht optimal, aber für uns nach einigem Modellieren an unserer jetzigen Küche vorstellbar.
Klassische Dunstabzugshaube über dem Herd, unterhalb des Herds würde sich vielleicht auch eine Besteckschublade eignen. In der Ecke unten ein LeMans -Schrank (bisher ist uns nichts Praktischeres untergekommen....aber dafür sind wir ja hier ;-)

Bis dahin nicht das Problem. Dann kommen ein paar cm Luft und der zweite Mauervorsprung. Da liegt im Moment die Schwachstelle unserer Küchenplanung. Es gab, zumindest im Küchenplaner, keine ultimativ passenden Schränke. Ich habe jetzt etwas davorgesetzt, dass das Modell in sich schlüssig ausschaut - heißt aber, wenn unser Küchplaner da nicht irgendwie ein Schrank oder ein Regal darumherumsetzen kann, dann....ja, dann was ?!? Direkt hinter dem Mauervorsprung Spüle und Spülmaschine. Und abschließend der Essbereich mit einer Bank von etwa 1m/ 1,10m, Tisch unterm Fester, Stühle ran, fertig!

Linker unterer Bildrand: Neben die Terrassentür habe ich noch einen Schrank gesetzt, eher aus einem Spieltrieb heraus ;-). Würde sich im Prinzip eignen für Wasserkocher, French Press oder Mikrowelle . Wirkt aber vielleicht auch etwas zu wuchtig, insbesondere mit dem Oberschrank .

Eine Zeit lang haben wir uns gefragt, ob Spüle und Herd die Plätze tauschen sollten, aber durch den Essbereich vorm - und den Lichteinfall vom Fenster erscheint uns die Spüle an dieser Stelle sinnvoller. Nach unserem Dafürhalten ist das nun das Optimum, was man an Küchenplanung hinlegen kann und sind sehr auf Euer Feedback gespannt. Gewiss gibt es noch die eine oder andere Idee (oder kritische Nachfrage) auf die wir noch nicht gekommen sind.

Last but not least würde uns natürlich auch interessieren, was der gemeine Küchenverkäufer in euren Augen für so eine Küche verlangen dürfte. Wir stellen uns eine "normale" Küche im Landhausstil vor, Fronten (Farbton Magnolia) nicht übermäßig verziert, Elektogeräte im mittelpreisigen Bereich (außer Herd, das darf schon Induktion sein), Spüle irgendwas, was nicht Edelstahl ist. Eigentlich wollten wir nicht mehr als 15k für eine Küche ausgeben, befürchten aber, dass das nicht ausreichen wird.

Vielen Dank fürs Lesen :-)

Checkliste zur Kuechenplanung

Personenkriterien und Ergonomie
Anzahl Personen im Haushalt: 3
Davon Kinder: 1
Körpergrößen aller Hauptbenutzer in cm (wegen Arbeitshoehe): ca. 1,70 und 1,87
Welche Arbeitshöhe ist angedacht (in cm)?: 91

Gebäudekriterien
Art des Gebäudes: Neu-/Umbau > Planänderungen möglich, Eigentum
Bruestungshöhe des Fensters (in cm): 80
Fensterhöhe (in cm): 135
Raumhöhe in cm: 250
Heizung: Fußbodenheizung
Sanitäranschlüsse: vollkommen variabel

Einbaugerätekriterien
Ausführung Kühlgerät: Integriert im Hochschrank (60cm)
Einbaukühlgerät Größe: 178cm
Ausführung Tiefkühl (TK)-Gerät: Im Kühlschrank ab 3 Schubladen unten
Dunstabzugshaube: Abluft
Hochgebauter Backofen : ja
Geplante Heißgeräte: N. a.
Hochgebauter Geschirrspüler : nein
Art des Kochfeldes: Induktionskochfeld
Kochfeldbreite (ca. in cm): 60

Sitzmöglichkeiten
Sitzmöglichkeit in der Küche / im Küchenbereich: Separater Tisch
Sitzmöglichkeit: Für wieviel Personen?: Für 3 Personen
Sitzmöglichkeit: Tisch - wenn gesonderter Tisch oder offene Küche: Wird nach Bedarf neu gekauft
Gewünschte oder vorhandene Tischgröße: N. a.
Wofür soll der Sitzplatz in der Küche genutzt werden und wie häufig: Nur zum Essen, täglich

Stauraum-Planung
Was steht auf der Arbeitsplatte oder soll dort stehen?: Wasserkocher, Küchenmaschine, Sonstiges (evtl. im Beitragstext benennen)
Welche weiteren Küchenmaschinen müssen in der Küche untergebracht werden: N. a.
Was soll in der Küche außer den Standards untergebracht werden: Geschirr komplett (nichts in Ess-/Wohnzimmer)
Welchen Stauraum gibt es sonst noch: Speisekammer, Hauswirtschaftsraum, Keller

Kochgewohnheiten
Was/wie wird gekocht? (Alltagsküche, Menüs, Snacks usw): Klassisch wie bei Muddern
Wie häufig wird gekocht: (fast) täglich 1x warm
Wird alleine gekocht? Oder auch gemeinsam? Mit und für Gäste?: Überwiegend allein, maximal zu zweit

Spülen und Müll
Spülenform: 1 Becken mit Abtropffläche
Welche Mülltrennung soll in der Küche vorgehalten werden: Biomüll, Restmüll

Sonstiges
Steht schon ein Küchenhersteller fest oder wird bevorzugt: ---
Steht schon ein Gerätehersteller fest oder wird bevorzugt: ---
Küchenstil: Landhausküche
Was stört an der bisherigen Küche und was soll die neue Küche unbedingt können? Warum?: N. a.
Preisvorstellung (Budget): 15k - 18k

Angehängte Dateien
 

Anhänge

  • Alno_Planungsansicht2.jpg
    Alno_Planungsansicht2.jpg
    85,6 KB · Aufrufe: 197
  • Alno_Raumansicht.jpg
    Alno_Raumansicht.jpg
    102,8 KB · Aufrufe: 191
  • Alno_Raumansicht2.jpg
    Alno_Raumansicht2.jpg
    187,5 KB · Aufrufe: 195
  • Küche2.POS
    9,6 KB · Aufrufe: 60
  • Küche2.KPL
    3,6 KB · Aufrufe: 56
  • Grundriss.jpg
    Grundriss.jpg
    113,3 KB · Aufrufe: 197
Hallo und herzlich Willkommen im Küchenforum!

Nur eine Anmerkung auf die Schnelle:
Wir stellen uns eine "normale" Küche im Landhausstil vor, Fronten (Farbton Magnolia) nicht übermäßig verziert,
Das bedeutet (leider), dass die Küche lackiert sein muss und schon ist es nicht mehr ganz billig. Evtl. könnt Ihr überlegen, den „Landhaus-Touch“ über Griffe, Fliesenspiegel und Accessoires zu erreichen und doch glatte Melaminharzfronten zu wählen.
 
Hallo und herzlich willkommen, vorab schon gleich eine Nachfrage - habt ihr den Raum schon umgebaut oder soll das noch erfolgen? Um die Räumlichkeiten besser zu verstehen, ist es manchmal hilfreich den kompletten Geschossplan einzustellen. In dem Zuge wäre dann auch wieder meine Lieblingsfrage - wie sieht es mit Elektrik und Wasser aus ? Kommt komplett neu , soll bestehendes weiter genutzt werden?
Dann wären noch ein paar mehr Details nötig- die Terassentür - wo genau ist sie positioniert? Wie ist das Fenster genaue Position / auch brüstungshöhe .
Nicht jeder arbeitet mit dem alno Planer - (ich zum Beispiel komm überhaupt nicht damit zurecht und bin auch in 99%Prozent der Fälle übers Handy im Forum )
 
Hab mal rumgespielt anhand dessen was da ist. Ergebnis ist sehr speziell mit Knackpunkten:
  • Die Fenster-Aussicht muss wirklich gut sein, damit man das so will (unbedingt austesten, wie es sich anfühlt, mit so wenig Distanz vorm Fenster zu sitzen)
  • max. 3 Personen mit Sitzplatz, Nr. 4 wird super eng
  • Abstand Zeile - Halbinsel ca. 85 cm --> Offener GSP konkurriert mit Spüle
Pluspunkt: Arbeitsfläche (90er auf Insel sollte 60+30MUPL werden)

Der Bereich rund um die tragende Säule planrechts inkl. "Regal" in Insel muss verblendet werden, damit Wasser gezogen werden kann. Mein Planer taugt dazu nicht :-)
1712152146452.jpg
1712152218870.jpg
 
Hallo Zusammen,

vielen Dank für die Rückmeldungen.

@isabella ein wenig mehr 'Landhaus-Touch' als über Griffe, Fliesenspiegel und Accessoires darf es schon sein, aber danke für den Hinweis. :-)

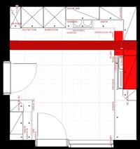
@Jette Der Umbau ist aktuell im Gange (Stahlträger wurde gesetzt, die neue Wand steht teilweise). Ich hänge hier noch einen alten Grundriss des EG an, weiß aber nicht, wie hilfreich das ist, denn dort ist die Küchenwand zum Wohnzimmer noch an der vorherigen Stelle und das kleine Viereck (SP.K.=Speisekammer gibt es auch nicht mehr).
Elektrik- und Wasseranschlüsse werden komplett neu verlegt, wobei der Wassseranschluss bereits im Entstehen ist (an der im handgemalten Grundriss eingezeichneten Stelle).
Die Position des Fensters und der Terrassentür habe ich ebenfalls laienhaft im Grundriss eingezeichnet, die Brüstungshöhe des Fensters ist 80 cm.

Abgesehen von gern genommenen generellen Anmerkungen und Hinweisen zu Küchenform, einzelnen Elementen und Schrank- und Geräteplatzierungen, wäre uns wichtig einen realistischen Preis für diese Küche zu ermitteln. Und hat jemand gute Erfahrungen mit bestimmten Küchenanbietern im Raum Hamburg und Umgebung?

Herzlichen Dank!
 

Anhänge

  • Erdgeschoss-Grundriss_upside down.JPG
    Erdgeschoss-Grundriss_upside down.JPG
    224,8 KB · Aufrufe: 77
Zuletzt bearbeitet:
@NicoleF Vielen Dank für die Mühe, habe den Beitrag erst entdeckt, nachdem ich meinen abgeschickt hatte. Die Idee schauen wir uns in Ruhe an, auf diese Art von Aufteilung sind wir noch nicht gekommen. :-)
 
Wenn ihr diese Wand schon versetzt, wollt ihr dann nicht eine Tür/Öffnung Richtung Ess/Wohnzimmer machen, denn mit einem Esstisch wird es in der Küche recht eng.
Versuch einmal bei deinem Plan einen Tisch und Sessel einzuzeichnen. Der Tisch sollte für 3 Personen mindestens 120 mal 80 sein.
 
Zuletzt bearbeitet:
Wie wäre die Überlegung die Küche hübsch ins Wohnzimmer / direkt zum Terrassenausgang/ Garten zu legen? Dort könnte eine freie Insel plus Esstisch gut passen. Wohnbereich dann in die gedachte Küche?? Wäre ein Wasseranschluss durch den Boden in den Keller denkbar?
Die neue Wand "steht teilweise" ist das Trockenbau oder Mauerwerk?
 

Anhänge

  • Screenshot_20240403-173251_Chrome.jpg
    Screenshot_20240403-173251_Chrome.jpg
    128,2 KB · Aufrufe: 101
Wenn die Wände fix sind (ich würd die auch öffnen, oder zumindest noch 50cm vom WZ stibitzen)...
Näher an deiner Planung, aber KS planrechts und BO im linken unteren Eck. Dafür Türanschlag wechseln.
 

Anhänge

  • 1712160671892.png
    1712160671892.png
    21,3 KB · Aufrufe: 73
@Schmunzelbrühe Magst du noch auf die gemachten Vorschläge und Anregungen antworten? Einstweilen stelle ich hier auf "unbeendet".
 

Ähnliche Beiträge

Neff Hausgeräte Ballerina Küchen Blum Bewegungstechnologie Weibel - Intelligente Küchenlüftung

Neff Spezial

Blum Zonenplaner

Weibel Abluft-Tuning

Weibel Abluft-Tuning
Zurück
Oben