Küchenplanung Ikea-Küche modernisieren

Bratan

Mitglied
Beiträge
6

Ikea -Küche modernisieren

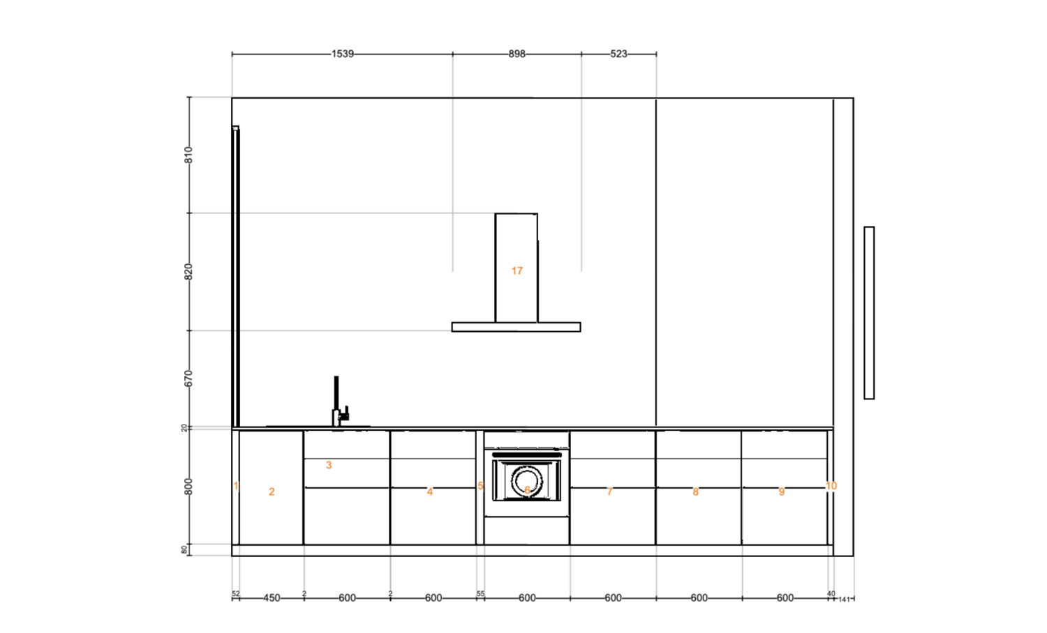
Wir haben eine bestehende Ikea-Küche im Altbau übernommen. Leider gibt es kaum Arbeitsfläche, da es aktuell nur eine 4,2 m lange Zeile ist, worin ein Hochschrank und 2x zwei übereinandergestapelte Unterschränke enthalten sind.

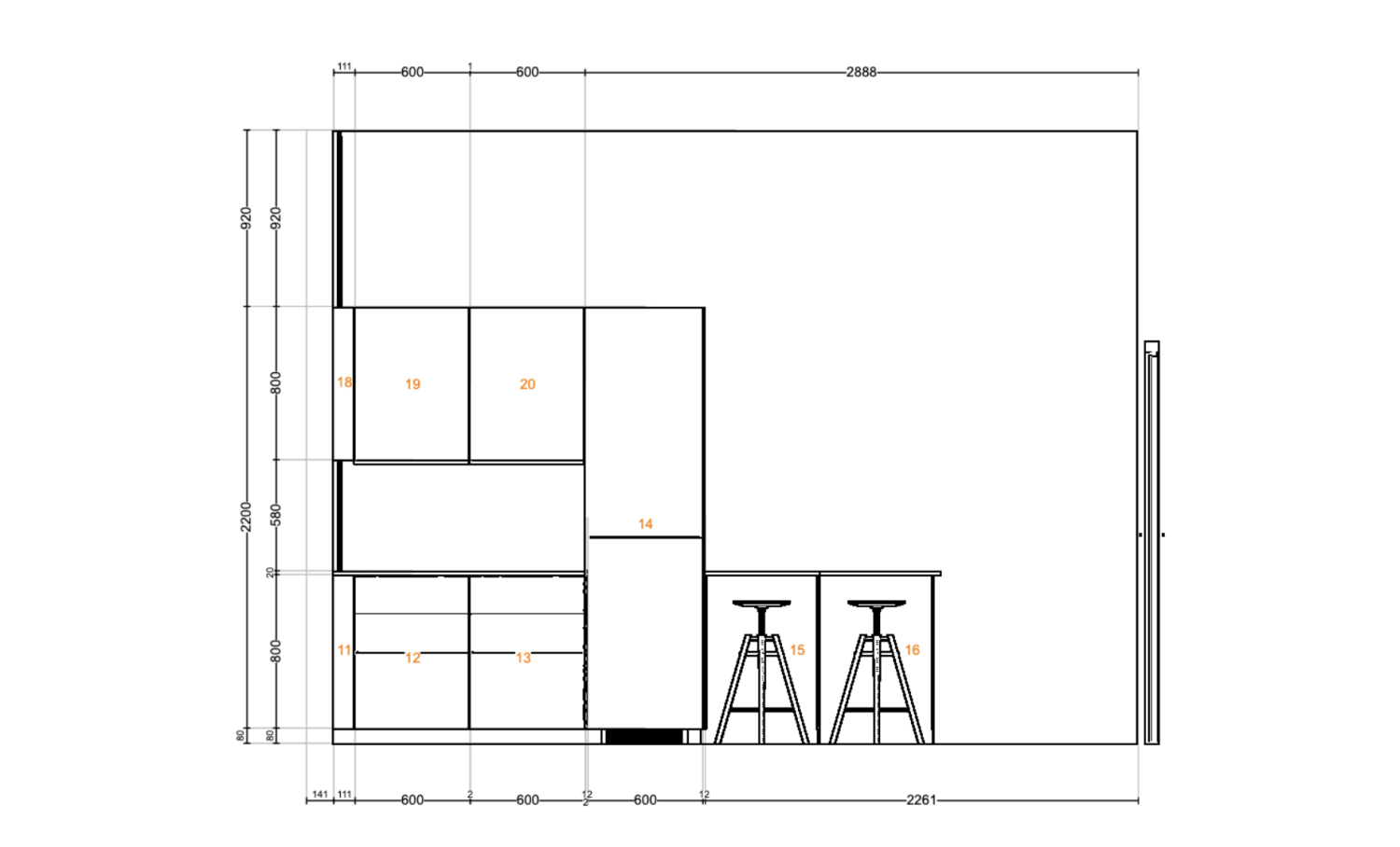
Jetzt wollen wir die Küche etwas praktischer gestalten. Meine Idee war, an der ursprünglichen Wand nur Unterschränke und vielleicht ein Regalbrett zu platzieren. Der Kühlschrank wandert auf die gegenüberliegende Wand, wo er von je zwei Unter- und Wandschränken flankiert wird.

Bisher sind auch kaum Schubladen vorhanden, das soll geändert werden. Ich habe jetzt jeden Schrank erstmal mit 40+20+20 Schubladen geplant. Eine 10er Innenschublade ist noch vorhanden und könnte weiterbenutzt werden. Aber sonst? Sind die Schubladen so sinnvoll? Was empfiehlt ihr?

Wie findet ihr generell die neue Anordnung?

Checkliste zur Kuechenplanung

Personenkriterien und Ergonomie
Anzahl Personen im Haushalt: 2
Davon Kinder: keine
Körpergrößen aller Hauptbenutzer in cm (wegen Arbeitshoehe): 175, 150
Welche Arbeitshöhe ist angedacht (in cm)?: 92

Gebäudekriterien
Art des Gebäudes: Bestandsbau > (kleinere) Umbauten möglich, Eigentum
Bruestungshöhe des Fensters (in cm): 90
Fensterhöhe (in cm): 200
Raumhöhe in cm: 320
Heizung: Heizkörper wie im Grundriss
Sanitäranschlüsse: fix (Bitte Position im Grundriss vermaßt angeben)

Einbaugerätekriterien
Ausführung Kühlgerät: Integriert im Hochschrank (60cm)
Einbaukühlgerät Größe: 178cm
Ausführung Tiefkühl (TK)-Gerät: Im Kühlschrank bis 2 Schubladen unten
Dunstabzugshaube: Umluft
Hochgebauter Backofen : nein
Geplante Heißgeräte: Backofen
Hochgebauter Geschirrspüler : nein
Art des Kochfeldes: Induktionskochfeld
Kochfeldbreite (ca. in cm): 60

Sitzmöglichkeiten
Sitzmöglichkeit in der Küche / im Küchenbereich: Tresen in Barhöhe
Sitzmöglichkeit: Für wieviel Personen?: Für 2 Personen
Sitzmöglichkeit: Tisch - wenn gesonderter Tisch oder offene Küche: Keiner
Gewünschte oder vorhandene Tischgröße:
Wofür soll der Sitzplatz in der Küche genutzt werden und wie häufig:

Stauraum-Planung
Was steht auf der Arbeitsplatte oder soll dort stehen?: Kaffeemaschine, Reiskocher, Küchenmaschine
Welche weiteren Küchenmaschinen müssen in der Küche untergebracht werden: N. a.
Was soll in der Küche außer den Standards untergebracht werden: Geschirr komplett (nichts in Ess-/Wohnzimmer)
Welchen Stauraum gibt es sonst noch: N. a.

Kochgewohnheiten
Was/wie wird gekocht? (Alltagsküche, Menüs, Snacks usw): Menüs, Alltagsküche
Wie häufig wird gekocht: (fast) täglich 1x warm
Wird alleine gekocht? Oder auch gemeinsam? Mit und für Gäste?: allein und zu zweit

Spülen und Müll
Spülenform: 1 Becken mit Abtropffläche
Welche Mülltrennung soll in der Küche vorgehalten werden: Altpapier, Biomüll, Gelber Sack Müll

Sonstiges
Steht schon ein Küchenhersteller fest oder wird bevorzugt: Ikea
Steht schon ein Gerätehersteller fest oder wird bevorzugt: Bosch
Küchenstil: Grifflose Küche
Was stört an der bisherigen Küche und was soll die neue Küche unbedingt können? Warum?: Mehr Arbeitsfläche
Preisvorstellung (Budget):

Angehängte Dateien
 

Anhänge

  • Screenshot 2025-09-15 at 19.28.03.png
    Screenshot 2025-09-15 at 19.28.03.png
    490,3 KB · Aufrufe: 139
  • Screenshot 2025-09-15 at 19.30.01.png
    Screenshot 2025-09-15 at 19.30.01.png
    1 MB · Aufrufe: 113
  • Screenshot 2025-09-15 at 19.29.47.png
    Screenshot 2025-09-15 at 19.29.47.png
    911,7 KB · Aufrufe: 104
  • Screenshot 2025-09-15 at 19.29.08.png
    Screenshot 2025-09-15 at 19.29.08.png
    69 KB · Aufrufe: 98
  • Screenshot 2025-09-15 at 19.28.47.png
    Screenshot 2025-09-15 at 19.28.47.png
    52,7 KB · Aufrufe: 132
  • PXL_20240429_081346634.jpg
    PXL_20240429_081346634.jpg
    217,6 KB · Aufrufe: 130
Hallo und willkommen,
erste Frage, die sich mir stellt: ist das eine Metod? Und wenn ja, wollt ihr die Korpusse weiterverwenden, also auch die gestapelten auseinandermachen und teilweise auf der rechten Seite wiederaufbauen? Da ist ja ein ordentlicher Versatz in der Tiefe der Schränke, woher kommt der?
Im Prinzip plant ihr die Küche neu, oder?
Auszüge sind auf jeden Fall sinnvoll, je mehr desto besser!
Für noch mehr Arbeitsfläche würde ich auf die Abtropfe der Spüle verzichten und vor allem versuchen, zwischen Spüle und Herd mehr Platz zu generieren, wäre eine Verlängerung des Herdanschlusses machbar? Im Ikeaplaner ist der Wasseranschluss nicht im Spülenschrank oder ist er falsch eingezeichnet?
 
auf dem Bestandsbild sieht man, dass die Steckdose für die Haube rechts der Haube sitzt. Ich würde das Kochfeld weiter in Richtung Fenster platzieren.

1757987840251.png

in der dunkelsten Ecke hinter dem KS wollte ich nicht sitzen.
 
Hi, wollt ihr wirklich zwischen Tür und Kühlschrank sitzen und die Wand begucken? Ich würd lieber am Fenster sitzen wollen.

@Evelin - ganz so weit wie in deinem Plan kann das Kochfeld nicht ans Fenster, glaube ich, da ist ja schon die Nische mit ~10cm mehr Tiefe. Zwei 60er zwischen Spüle und KF müssten passen.

bratan.jpg
 
oh sh .., hab ich übersehen. hab nur die Steckdose gesehen. Mir ist beim Abspeichern auch ein Fehler unterlaufen, hab die Planung nicht mehr.

Wenn die Wand 295 lang ist, passen die 2 x 60er dazwischen auch nicht. Oder ist der Spüler nur ein 45er? 60 und 40 würde gut passen.

1758005798110.png
 
@Zaus: danke, ja ist eine Metod und so weit möglich wollen wir die Korpusse weiterverwenden. Der Versatz kommt daher dass hinter den gestapelten Schränken eine Nische von 9 cm Tiefe x 124 cm ist. Die Schränke sind da nach hinten zur Wand durchgeschoben. Soll künftig eine einheitliche Flucht werden und eine extra tiefe Arbeitsplatte endsprechend ausgeklinkt.

Der Wasseranschluss wird im Ikea -Planer leider nur ohne genaue Position an eine Wand geworfen, oder ich habe es nicht gefunden. Der ist 100 cm von links. Ich dachte dass man die link Ecke eh sonst nicht nutzt und daher da die Abtropfe hin kann. Würdest du dann eher die Spüle in das Eck schieben? Kann man eine Spüle überhaupt so einfach schieben?

@Evelin: wow, gut erkannt die Steckdose, aber Überraschung - die Haube hat nochmal eine eigene unter dem Kamin :-)

@taylor: genau, ist aktuell ein 45er GSP geplant. Neben dem GSP gehen leider die ersten 25 cm 13 cm verloren weil da ein Rohr senkrecht verläuft. Deine Ideen mit 80ern probiere ich später mal aus. Prinzipiell bin ich eher bei schmaleren Unterschränken, weil man dann wenn man zu zweit kocht seltener im Weg steht.

Zur Position des Tresens: danke für eure Ideen dazu, die schaue ich mir auch heute Abend nochmal genauer an. Da das Fenster in einen engen dunklen Hinterhof geht, muss man eh mit künstlichem Licht arbeiten. Die Idee kam aus der Ikea Möbelausstellung und erinnert uns an kleine Straßenimbisse in Asien. Ist eher so dass man da was trinken kann während der andere kocht oder so, und als Ablage um die Einkäufe in den Kühli zu räumen. Im Wohnzimmer wird noch ein richtiger Esstisch stehen.
 

Anhänge

  • PXL_20250906_134510868.jpg
    PXL_20250906_134510868.jpg
    213 KB · Aufrufe: 67
Zuletzt bearbeitet:
Der Tresen so wie Evelin in #3 gezeichnet hat, wäre gut zum Lümmeln, idealerweise rund, so dass man ohne Blessuren vorbeikommt (dafür kann man vielleicht eine runde Tischplatte „umfunktionieren“). Die Imbiß-Idee hat ihren Charme, aber wirklich gerne mit dem Rücken zum Geschehen sitzt man im Alltag nicht.
 
Bei den Unterschränken musst du bedenken, dass du mit Auszügen immer 8 cm nutzbare Breite verlierst. Dieser Verlust fällt bei schmalen Schränken stärker ins Gewicht, zudem ist der Stauraum bei breiten Schränken besser nutzbar.

Wenn das Fenster in einen dunklen Hinterhof geht, würd ich die Straßenimbisstheke ja erst recht dort platzieren. Morbider Charme und so. :cool: Allenfalls auf Rollen, damit sie sich zum kompletten Öffnen des Fensters aus dem Weg schieben lässt.

bratan1.jpg
 
Ich wollte hier nochmal ein Update geben.

Wir haben uns nochmal etwas mehr mit Küchen beschäftigt, das meiste über den Haufen geworfen und würden gerne weg von Ikea . Waren jetzt in einem kleinen Küchenstudio in Berlin, wo wir sehr ausführlich und ohne Druck beraten wurden. Hersteller wäre Pronorm . Der Planer ist gelernter Tischler und würde auch selbst die Küche aufbauen.

Zur Diskussion über den Tresen: aktueller Stand wäre, der KS wandert nach planoben rechts, dann wird die APL von den US aus einfach nach planunten verlängert für den Tresen d.h. einheitliche Tiefe.


Noch ein paar Eckdaten:
- Korpushöhe 76 cm
- Sockelhöhe 11,5 cm
- APL aus Naturstein Taj Mahal 2 cm
- Rückwand Spiegelglas ESG
- Metall-Griffleisten
- Front "organic glass" (= mattes Acryl)
- MUPL zwischen Herd und Spüle
- Spüle Blanco Etagon
- Quooker
- Spülschrank mit Tür - hier war die Aussage, dass sich (verkürzte) Schubladen nicht lohnen mit dem ganzen Quookerzeug
- weniger, dafür breitere US:
- Linke Zeile: GSP, Spüle, 60er US, Herd, 60er US, 100er US
- Rechte Zeile: KS, 120er US, Tresen
- in den US jeweils zwei 38er Schubkästen, im oberen zusätzlich jeweils eine Innenschublade. Sollten wir unten auch eine Innenschublade nehmen? Die 38er Höhe nutzt man doch kaum aus, oder?

Preislich wären wir da jetzt bei knapp 22k ohne Geräte außer Quooker.
 
Das klingt ja schon ganz anders! Hast du ein Bild von der neuen Planung? 120er US wären mir persönlich viel zu breit. Innenauszüge würde ich nur planen, wenn da selten genutzte Sachen drin verschwinden und ich ausreichend Stauraum habe.
Wollt ihr nur den Quooker oder auch Cube? Dann evtl einen grösseren Spülenschrank planen (falls ihr noch irgendetwas anderes darin unterbringen wollt), Drehtür ist gut für den Quooker.
Das ist unser 80er Spülenschrank mit Quooker und Cube (da ist der scalecontrol für den Quooker noch nicht dabei).
 

Anhänge

  • IMG_5335.jpeg
    IMG_5335.jpeg
    213,7 KB · Aufrufe: 38
Ja, den Quooker komplett mit Cube, Filter und passendem Seifenspender.

Die Innenauszüge werden hier über Mitnehmer mit rausgezogen und können mit einem Handgriff easy gelöst werden so dass man an die untere Lade kommt. Die Auszüge laufen extrem leicht und geschmeidig. Bin mir nicht ganz sicher ob der eine 120 oder doch 100 cm breit ist.
 

Anhänge

  • links.jpg
    links.jpg
    97,5 KB · Aufrufe: 54
  • rechts.jpg
    rechts.jpg
    89,4 KB · Aufrufe: 58
Dann würde ich einen 80er US für die Spüle erwägen. Mann muss ja auch die CO2-Kartuschen wechseln, ohne sich die Arme zu brechen…mir wäre die Arbeitsfläche zwischen KF und Spüle zu klein. Da würde ich noch switchen.
Mitnehmer gehen wohl gern mal kaputt, wenigstens die oberen Auszüge würde ich „direkt“ haben wollen, für die Sachen, die man 5-8x am Tag herausholt.
 
Zuletzt bearbeitet:
Die Dunsthaube kann leider keinen mm weiter nach rechts ohne die Steckdose zu versetzen, was ich eigentlich vermeiden wollte. Dieser Abstand zwischen Spüle und Herd ist auch jetzt schon so und stört uns nicht, zumindest nicht bewusst. Aktuell sind in der Zeile 3 Hochschränke, so dass wir nur diese 60 cm und nochmal 45 cm rechts vom Herd als Arbeitsfläche haben.

Alternativ könnten wir noch den GSP durch einen 45er ersetzen, aber ob das eine gute Idee ist?
 
Und Spüle und GSP tauschen geht nicht wegen der Anschlüsse?
Was für eine Haube ist geplant?
 
Die Anschlüsse sind 100 cm von links. Die Tiefe der Zeile ist 60 cm, mehr geht nicht wegen dem Fenster. Kann der Wasseranschluss auch hinter dem GSP liegen?
 

Ähnliche Beiträge

Neff Hausgeräte Ballerina Küchen Blum Bewegungstechnologie Weibel - Intelligente Küchenlüftung

Neff Spezial

Blum Zonenplaner

Weibel Abluft-Tuning

Weibel Abluft-Tuning
Zurück
Oben