Hilfe zur Küchenplanung

Status
Nicht offen für weitere Antworten.

abausb

Mitglied
Beiträge
17
Moin liebes Küchenforum,

wir würden uns sehr freuen, wenn wir nach längerem Mitlesen und Aufschnappen von Hinweisen und guten Tips konkrete Hilfestellung bekommen.

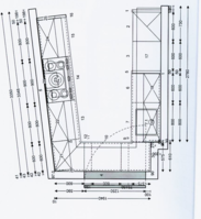
Wir planen seit längerem unsere neue Küche. Die Grundzüge sind hoffentlich aus den Anhängen ersichtlich. Einen Grundriss der Wohnung habe ich auch versucht, hochzuladen (muss gleich mal sehen, ob das funktioniert habe). Dazu noch als Erklärung, der 60 cm Vorsprung, der derzeit noch die Küche vom Essplatz optisch etwas abgrenzt, wird entfernt (sonst wäre nicht genug Platz für die Schränke in 80-60-60-60)

Die Planung hat sich inzwischen etwas verändert (ist aber für unsere Fragen egal), aber neuer Ausdrucke haben wir nicht. Im Wesentlichen ist der 60 cm Hängeschrank rechts neben dem Fenster (der mit der Mikrowelle ) weggefallen, die MW wird statt dessen in den 60er Hänger gegenüber der Dunstabzugshaube eingebaut. Und im Unterschrank unter dem Fenster haben wir jetzt statt der Aufteilung 15-60-15 einen 90er Auszug in der gleichen Optik, wie linkes und rechts die anderen Auszüge (also mit 2 gleich großen Auszügen).

Die AP soll aus Silestone sein. Spülbecken Keramik weiß. Fronten der Küche voll lackiert und ebenfalls weiß.

Nun unsere Hauptfragen (wenn jemand zu der grundsätzlichen Aufteilung noch etwas sagen möchte, hören wir uns das natürlich auch gerne an).

Wir haben derzeit noch 2 realistische Angebote, mit denen wir uns beschäftigen.

1. Eine Schüller C3 Küche
2. Eine Rotpunkt Küche

Preislich sind die Angebote sehr ähnlich, beide haben aber Vor- und Nachteile.

Der Anbieter der Schüllerküche hat (aus unserer Sicht) als Hauptvorteil zu bieten, dass die Sichtseiten, Fronten und Wangen voll lackiert geliefert werden, bei Rotpunkt sind die Sichtseiten nicht voll lackiert zu bekommen.


Rotpunkt punktet mit folgenden Aspekten:

Der Anbieter bietet uns an, die AP lediglich in drei Stücken zu liefern, also Schnittkanten in den beiden Ecken. Dagegen kann der Schüller-Lieferant nur AP-Längen von max. 240 cm im Stück liefern, Vorschlag ist, die rechte Platte (die mit dem Kochfeld) in drei teile zu stückeln, Schnitte jeweils in Verlängerung der Kochfeldaußenkanten. Meine Frau meint, das wird ihr nicht gefallen. Außerdem erscheinen uns die Auszüge mit den Glasseitenwänden etwas wertiger als bei Schüller (haben aber auch Glas).

Wir müssen also abwägen, ob die Lackierung oder die gestückelte Silestoneplatte uns mehr stören werden. Uns ist schon klar, dass uns diese Entscheidung niemand abnehmen kann, aber vielleicht kann ja jemand dennoch mit seiner Meinung oder noch besser Erfahrung helfen.

Würde uns sehr freuen.

Vielen Dank im Voraus

Alex
 

Anhänge

  • Küche 1.jpg
    Küche 1.jpg
    50,3 KB · Aufrufe: 223
  • Küche 2.jpg
    Küche 2.jpg
    44,4 KB · Aufrufe: 212
  • Küche 4.png
    Küche 4.png
    277,2 KB · Aufrufe: 209
  • Küche 3.jpg
    Küche 3.jpg
    40,7 KB · Aufrufe: 211
  • Kueche 5.pdf
    479 KB · Aufrufe: 254
Status
Nicht offen für weitere Antworten.

Ähnliche Beiträge

Neff Hausgeräte Ballerina Küchen Blum Bewegungstechnologie Weibel - Intelligente Küchenlüftung

Neff Spezial

Blum Zonenplaner

Weibel Abluft-Tuning

Weibel Abluft-Tuning
Zurück
Oben