- Beiträge
- 9
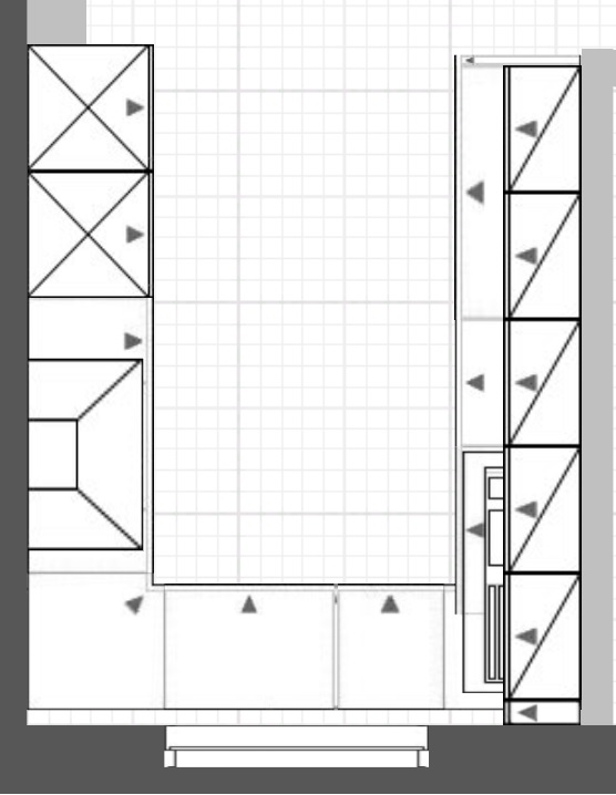
So, nachdem ich mal alles ein wenig hab wirken lassen...stelle ich mal unsere neue Variante ins Netz. Wir wollen an der U-Form festhalten, allerdings ohne den kleinen Tresen. Da hatte ich auch immer ein wenig Bauchschmerzen, weil die Essgruppe dadurch weiter in das WZ hineinrückt. Daher lassen wir das jetzt weg. Eine Tür zwischen dem Flur und der Küche wollen wir aber trotzdem nicht haben. Wir waren bereits in einer DHH mit einer Schiebetür und die direkt daneben liegende DHH hatte keine Schiebetür. Uns hat es ohne die Tür gleich auf anhieb besser gefallen. Ist vielleicht auch Geschmackssache
Die Spüle habe ich jetzt auch in Richtung Fenster verschoben. Nach Rücksprache mit der Baufirma hätte das Spülbecken, bei Platzierung an die dünne Flurwand, eine Aufputzleitung verursacht. Finde ich irgendwie nicht so schön...
Ich würde mich freuen, wenn ihr noch einmal ein kleines Feedback zu der neuen Planung äußern würdet.
Bis dahin ein schönes WE!!
Ich würde mich freuen, wenn ihr noch einmal ein kleines Feedback zu der neuen Planung äußern würdet.
Bis dahin ein schönes WE!!
Anhänge

