Erste Küche - Schwere Küche - Kleine Küche

dolorespark

Mitglied
Beiträge
4
Hallo zusammen!

Mein Beitrag eben ist einfach verschwunden - also alles noch mal von vorn...
Meine Partnerin und ich ziehen nach langer Zeit in WGs endlich in unsere erste gemeinsame Wohnung.:kiss::2daumenhoch: Daher machen wir uns jetzt auch fleißig an die Planung unserer ersten eigenen Küche; und da gehts mit den Problemen los.

Mal davon abgesehen, dass wir noch keine eigenen Vorstellungen und Erfahrungen haben ist auch der Grundriss der halb-offenen Küche für uns eine echte Herausforderung (siehe unten) - aber vielleicht ist ja gerade das für euch das Spannende. :cool: Wir haben schon mal drauf-los-geplant - sind aber für eure Ideen und Anregungen sehr dankbar. Zunächst aber noch mal ein paar Informationen:

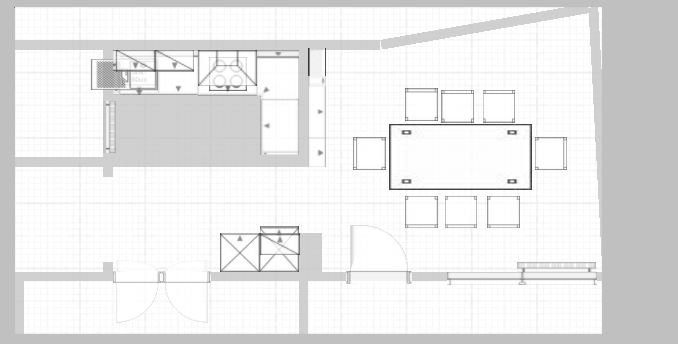
Wohnung
- 100qm, überall Parkett außer in Küche+Bad
- Zwei-Personen Haushalt
- Speisekammer direkt neben der Küche
- Esszimmer halb-offen an Küche

Küchen-Raum
- klein, L-Form wahrscheinlich notwendig (Eckschrank?)
- eventuell teilweise "zweizeilig"?
- Halb-Offene Küche
- 115cm hohe Wand-Abtrennung (L-Form) zwischen Küche und Esszimmer
- Wand-Abtrennung (streichbar) hat eine dunkelgrau-schwarze Steinplatte obendrauf (fix)
- keine richtigen Türen und Fenster in Küche
- Dunkelgraue Fließen
- Mietwohnung -> Anschlüsse fix
- Kein Essplatz in Küchen-Raum nötig
- Kühlschrank freistehend
- Geschirrschrank könnte ins Esszimmer
- Geschirrspülmaschine gewünscht

Wünsche / Vorstellungen
- moderne Wohnung -> moderne Küche
- Hochglanz Weiß
- Arbeitsplatte flexibel (Vorschläge?)
- Grifflose Küche oder schmale Griffleisten
- 5000 Euro Budget
- Eckiges Spülbecken ohne Abtropf (modern)
- Ich stehe auf innovative Elemente sowie moderne Lichtkonzepte ;D


Anbei findet ihr Grundrisse zur Wohnung, zur Küche, Maße und unsere ersten Planungsversuche (Ikea und Also)

Vielen Dank für eure Hilfe - wir freuen uns schon.

DP


Checkliste zur Küchenplanung von dolorespark

Anzahl Personen im Haushalt : 2
Davon Kinder? : keine
Körpergrössen aller Hauptbenutzer (wegen Arbeitshöhe ) in cm : 176, 166
Art des Gebäudes? : Bestandsbau, Umbauten ausgeschlossen
Brüstungshöhe des Fensters (in cm) : 115
Fensterhöhe (in cm) :
Raumhöhe in cm: : 225
Heizung : Heizkörper wie im Grundriss
Sanitäranschlüsse : fix
Ausführung Kühlgerät? : Stand-Alone bis 60 cm Breite
Kühlgerät Größe : bis 175 cm Höhe
Ausführung Tiefkühl (TK)-Gerät : Im Kühlschrank ab 3 Schubladen unten
Dunstabzugshaube? : Umluft
Backofen etc. hochgebaut? : Wenn möglich
Hochgebauter Geschirrspüler ? : nein
Kochfeldart? : Induktion
Kochfeldbreite ca. (in cm)? : 59
Spülenform: : 1 Becken ohne Abtropffläche
Weitere geplante Heißgeräte : Standmikrowelle, Backofen
Küchenstil? : modern
Sitzmöglichkeit in der Küche / im Küchenbereich als : Keine
Sitzmöglichkeit: Für wieviel Personen? : nein
Sitzmöglichkeit: Tisch - wenn gesonderter Tisch oder offene Küche : Wird nach Bedarf neu gekauft
Gewünschte o. vorhandene Tischgröße : 220cm
Wofür soll der Sitzplatz in der Küche genutzt werden? Wie häufig? : Kein Sitzplatz in Küche
Welche Arbeitshöhe ist angedacht (in cm)? : 92
Was steht auf der Arbeitsplatte oder soll dort stehen? : Wasserkocher, Obstschale
Welche weiteren Küchenmaschinen müssen in der Küche untergebracht werden? : Toaster, Handrührgerät, Mixer, Pürierstab
Was soll in der Küche außer den Standards untergebracht werden? : Sonstiges (evtl. im Beitragstext benennen)
Welchen Stauraum gibt es sonst noch? : Geschirr/Gläserschrank im Wohn-/Esszimmer, Speisekammer, Keller
Was/wie wird gekocht? (Alltagsküche, Menüs, Snacks usw) : Alltagsküche und Snacks
Wie häufig wird gekocht? : (fast) täglich 1x warm
Wird alleine gekocht? Oder auch gemeinsam? Mit und für Gäste? : alleine oder zu zweit
Was stört an der bisherigen Küche und was soll die neue Küche unbedingt können? Warum? : Moderne Küche, Hochglanz weiß
Steht schon ein Küchenhersteller fest oder wird bevorzugt? :
Steht schon ein Gerätehersteller fest oder wird bevorzugt? :
Preisvorstellung (Budget) : bis 5.000,-
 

Anhänge

  • 3_Ikea_Plan.JPG
    3_Ikea_Plan.JPG
    21,8 KB · Aufrufe: 262
  • 1_Wohnung_Gesamt.jpg
    1_Wohnung_Gesamt.jpg
    28,8 KB · Aufrufe: 283
  • 2_Küche_Maße_NEU.JPG
    2_Küche_Maße_NEU.JPG
    40 KB · Aufrufe: 416
Zuletzt bearbeitet:
AW: Erste Küche - Schwere Küche - Kleine Küche

:welcome: im Küchenforum, KPL und POS Dateien gibt es schonmal gut, aber die müssen gleichnamig sein, kannst Du das prüfen?
5t Euro fix? Lack glanz, grifflos und Griffleisten alles nicht so billig ;-).

LG, Muckelina
 
AW: Erste Küche - Schwere Küche - Kleine Küche

Vielen Dank fürs nette Willkommen-heißen und den Tipp mit den Dateien. Habe es direkt korrigiert.

Beim Budget wäre es schon schön, wenn es bei den 5000 bleiben würde. :-[

Hast du denn ein paar Tipps, wie sich das Ganze gut umsetzen lassen würde?
 
AW: Erste Küche - Schwere Küche - Kleine Küche

Auch von mir ein herzliches Willkommen! :welcome:

Hast du die Maße vom Heizkörper?
 
AW: Erste Küche - Schwere Küche - Kleine Küche

Und ist der Heizkörper wirklich nur 70 cm von Wand entfernt?
Wenn mehr, würde ich da oben einen übertiefen Einzeiler planen, aus Kostengründen aber nur mit einer tieferen APL, Schränke normal.
 
AW: Erste Küche - Schwere Küche - Kleine Küche

Heizungskörpermaße wären schon sinnvoll .. Tiefe, also wie weit steht er in den Raum, Höhe vom Boden gemessen.

Die Nische hinter der halbhohen Wand ist wirklich nur 150 cm tief? Grrr ... da hat wieder jemand gebaut, der keine Ahnung von Standardmaßen hat ;-)

5000 Euro Budget mit dem Anspruch wird eng. Vermutlich würde ich da als erstes mal auf die DAH verzichten ... Platz lassen, aber später nachrüsten. Denn in dem Paket wird das sonst nur eine teure Kochstellenbeleuchtung.

Gibt es evtl ein Foto von der 275 cm Wand, damit man mal sehen kann, wie die ganzen Anschlüsse dort auch aussehen?

Raumhöhe nur 225 cm? Ganz schön niedrig ;-)

Stand-Alone neben dem anderem Hochschrank ... vermutlich habt ihr selber schon festgestellt, dass das nicht besonders toll aussieht. Dort soll wohl die "Standmikrowelle" hin .. sichtbar als Einbaugerät oder wirklich Standmikrowelle hinter Klappe?

Enden die Fliesen in der Küche quasi vor der kleinen Trennwand, Fläche also 150 cm tief oder enden sie mit Linie der Trennwand und damit Fläche 170 cm tief?
 
AW: Erste Küche - Schwere Küche - Kleine Küche

Hallo zusammen,

sorry für die verspätete Antwort - das Umzugswochenende wird am Ende doch immer stresiger als gedacht. ;-)

Heizkörper:
Der Heizkörper ist nach hinten in die Wand versetzt und schaut nur 1-2cm raus, also fast gar nicht. Er beginnt ganz genau 78cm von der Wand entfernt. Hohe sind 55cm.

L-Nische und neue Maße:
Die ist 160cm tief, also von der Wand aus bis zur Abtrennung vom "L" ist das Innenmaß 160cm... wir haben von den Vormietern falsche Maße bekommen... wenn man nicht alles selbst macht... :-)

--> L-Tiefe 160cm
--> Wandbreite 285cm

Fotos:
Muss ich leider nachreichen, komme erst wieder Mitte der Woche in die Wohnung.

Mirkowelle:
Soll als Standmikrowelle hinter eine Klappe - wir brauchen die nicht so oft und die Einbaumikrowellen sind da irgendwie unverschämt teuer.

Kühlschrank:
Bisher als Stand-Alone gedacht, aber hier könnte man am ehesten noch ein Einbaugerät verwenden; den Kühlschrank brauchen wir ja auch oft, da kann man zur Not auch mehr investieren.

Boden-Fließen-Holz:
Fließen liegen bis zum äußeren Ende des L, also 180cm.
 
Zuletzt bearbeitet:
AW: Erste Küche - Schwere Küche - Kleine Küche

Ich hatte vor Tagen schon eine Planung gemacht... Hier steht der Heizkörper allerdings weiter in den Raum hinein. Da ich grad keine Zeit habe, dass anzupassen, lasse ich die Planung jetzt so wie sie ist. Vielleicht hat jemand Lust, daran weiter zu basteln...;-)
 

Anhänge

  • dolores grundriss.JPG
    dolores grundriss.JPG
    16,6 KB · Aufrufe: 236
  • dolores1.jpg
    dolores1.jpg
    45,2 KB · Aufrufe: 235
  • dolores.jpg
    dolores.jpg
    42,9 KB · Aufrufe: 241
  • dolores - conny.KPL
    3,9 KB · Aufrufe: 237
  • dolores - conny.POS
    7,7 KB · Aufrufe: 237
AW: Erste Küche - Schwere Küche - Kleine Küche

Conny,
leider blicke ich bei deiner Planung nicht durch! :-[

Nach dem Grundriss zu schließen, befindet sich dort, wo du Kühlschrank und BO geplant hast, doch die Tür zum Wohnzimmer.
 
AW: Erste Küche - Schwere Küche - Kleine Küche

Dolores, kannst du dann bitte nochmal alle Maße von:
136713d1396187013-erste-kueche-schwere-kueche-kleine-kueche-2_kueche_masse_neu.jpg


gegenmessen und kontrollieren?

Upps .... sehe gerade, du hast das angepaßt ... nicht wahr? ... aber wohl leider nicht mehr maßstabsgerecht - oder?

Edit:
die breiteren grauen Wandteile planunten (500 mm .. und das Breitenmaß?) und planoben sind zunächst mal wandhohe Mauerteile - oder? Wäre gut, das planoben auch nochmal genau zu vermaßen.
 
AW: Erste Küche - Schwere Küche - Kleine Küche

Hallo Conny,

danke für deine Mühe - aber die beiden haben recht - dort, wo das "Fenster" eingezechnet ist, ist in Wahrheit eine Flügeltür, die zum Wohnzimmer hin öffnet.

Im Alno hab ich sowas nicht gefunden, da hat keine Tür von den Maßen her gepasst, deshalb hab ich da ein Fenster reingebaut. Sorry! :-[:-[


@KerstinB: Genau, die Maße passen jetzt alle, akribisch selbst nachgemessen. Den Plan selbst hab ich nicht mehr angepasst, die Maßstäbe sind also nicht 100% perfekt, sondern jeweils +-10cm. Das kann ich jetzt auf die Schnelle auch nicht selbst ändern... das muss mein Freund machen :kiss:

Genau - die breiten Wand-Pfeiler sind 35cm breit und gehen bis zur Decke hoch. Das L selbst ist dann nur halb-hoch, 160cm x 65cm Innenmaß.

Vielen lieben Dank für eure Hilfe!
 
AW: Erste Küche - Schwere Küche - Kleine Küche

Die Zaubertaste beim Alno ist F4. Damit kannst du alles an deine Bedürfnisse anpassen.
 
AW: Erste Küche - Schwere Küche - Kleine Küche

Du hast scheinbar bei deinen Änderungen im ersten Beitrag einige Dateien im Fenster "Anhänge verwalten" wieder gelöscht. Bilder und Anhänge im "Anhänge verwalten"-Fenster NICHT löschen.
Es kann sein, dass du sie noch siehst, das ist dann dein Cache. Wir sehen sie nicht mehr.


Deshalb macht es Sinn, geänderte Daten immer im neuen Beitrag anzuhängen und nicht im ersten Beitrag auszutauschen. Wenn sie dann durchgreifend sind, kann man sie im ersten Beitrag verlinken. Außerdem macht der Threadverlauf dann mehr Sinn ;-)
 
AW: Erste Küche - Schwere Küche - Kleine Küche

So, habe mal einen neuen Alnoplan gemacht (mit einer älteren Version, evtl. Fehlermeldungen einfach wegklickern).
 

Anhänge

  • dolorespark_20140330_Leer-alt.POS
    8,1 KB · Aufrufe: 242
  • dolorespark_20140330_Leer-alt.KPL
    4,1 KB · Aufrufe: 242
  • dolorespark_20140330_Leer-alt_Grundriss.jpg
    dolorespark_20140330_Leer-alt_Grundriss.jpg
    13,3 KB · Aufrufe: 228
  • dolorespark_20140330_Leer-alt_Ansicht.jpg
    dolorespark_20140330_Leer-alt_Ansicht.jpg
    24,5 KB · Aufrufe: 230
AW: Erste Küche - Schwere Küche - Kleine Küche

Ich habe einmal geplant, leider geben die Gegebenheigen nicht viel her.:(

Bewginnend planoben links:
1o cm Blende wegen Heizkörper
GSP
45er Auszug 1-2-3 wegen Oütik
60er Spüle 3-3
40er Auszug 3-3 MUPL
tote Ecke

ab toter Ecke:
90er Auszug 1-1-2-2 mit Kochfeld mittig
Blende

planunten, rechts beginnend:
auf Blende verzichtet, da Mauervorsprung
Kühlschrank
BO mit Klappfach für Mikrowelle
Blende
 

Anhänge

  • dolorespark_Mela.KPL
    3,9 KB · Aufrufe: 243
  • dolorespark_Mela.POS
    11,4 KB · Aufrufe: 258
  • Screenshot (72).jpg
    Screenshot (72).jpg
    56,9 KB · Aufrufe: 234
  • Screenshot (73).jpg
    Screenshot (73).jpg
    69,6 KB · Aufrufe: 244
  • Screenshot (74).jpg
    Screenshot (74).jpg
    60,8 KB · Aufrufe: 230
  • Screenshot (75).jpg
    Screenshot (75).jpg
    64,4 KB · Aufrufe: 239
  • Screenshot (76).jpg
    Screenshot (76).jpg
    70 KB · Aufrufe: 232
AW: Erste Küche - Schwere Küche - Kleine Küche

Ich hatte mir die Dateien heruntergeladen, wurde vom Planen abgehalten, später hatte ich dann vergessen, die Planung mit dem Grundriss abzugleichen...:-[ ...aber wenn man die U-Schränke vor der Tür weglässt, würde die Planung ja trotzdem noch funktionieren. :cool:

Ich hab meine Planung jetzt einmal angepasst. Da mir der Compi jetzt 3x hintereinander abgestürzt ist und ich jetzt keine Zeit mehr habe, meinen Text noch ein 4. mal zu schreiben, gibt es jetzt nur die Bilder und die Dateien, den Text ergänze ich später.

So, nun geht es weiter....

Die Arbeitsfläche der Funktionszeile habe ich übertief geplant. Damit es mit der DAH kein Problem gibt, habe ich mich für eine APL-Tiefe von 70cm entschieden. Das Kochfeld sollte dann evtl. etwas weiter nach hinten eingebaut werden.
Mit der übertiefen APL erhält man zum einen eine tolle Arbeitsfläche, zum anderen könnte der breite U-Schrank in dieser Zeile dann auch übertief werden. Als passender Hersteller fällt mir als erstes Schüller ein, der zu den günstigeren Herrstellern gehört.

Auf grifflos würde ich in dieser Küche verzichten. Grifflos geht immer mit einem Stauramverlust einher, weil Griffleisten Platz brauchen.
Da du in dieser Küche nur 2 Unterschränke unterbringen kannst, habe ich diese Küche im 6er Raster geplant.

Die Spüle sitzt an der Wand zwar etwas ungünstig, ich würde sie trotzdem dort lassen um ausreichen Arbeitsfläche zwischen Kochfeld und Spüle zu erhalten. Mit der 10cm breiten Blende, kann man durchaus auch damit leben...

Wenn das Budget zu knapp wird, würde ich überlegen, die Hängeschränke in einer Kontrastfarbe, bei Ikea zu kaufen...

Ich habe in meiner Planung den Standalone beibehalten. Mit einem Hängeschrank zwischen Hochschrank und Wandstummel, entsteht eine schöne Nische, in dem der Kühlschrank integriert stehen kann. Weil der Wandstummel nicht tief genug ist, müsste er allerdings mit einem Trockenbau angepasst werden. Mit Dachlatten und etwas Rigips, sollte das auch ein Heimwerker hinkriegen.

Hinter der halbhohen Mauer habe ich mindertiefe Schränke eingeplant. Hier könnte man evtl. auch auf den 28cn tiefen Billy (Ikea) zurückgreifen. Der füllt die Breite allerdings nicht ganz aus. Das habe ich durch das Wandausgleichsregal einmal dargestellt.

Verplant habe ich...

- Blende
- Spülenschrank
- GSP
- 90er Unterschrank im Raster 1-1-2-2 - 70cm übertief
- tote Ecke
- 80er Unterschrank im Raster 1-1-2-2
- Blende

- 2 Hängerschränke 60cm breit
- Blende
 

Anhänge

  • dolorespark_20140330- alt- conny.KPL
    4,1 KB · Aufrufe: 222
  • dolorespark_20140330- alt- conny.POS
    11,6 KB · Aufrufe: 233
  • dolores.jpg
    dolores.jpg
    40,9 KB · Aufrufe: 270
  • dolores1.jpg
    dolores1.jpg
    41 KB · Aufrufe: 232
  • dolores2.jpg
    dolores2.jpg
    39,2 KB · Aufrufe: 250
  • dolores grundriss.JPG
    dolores grundriss.JPG
    32,5 KB · Aufrufe: 225
Zuletzt bearbeitet:

Ähnliche Beiträge

Neff Hausgeräte Ballerina Küchen Blum Bewegungstechnologie Weibel - Intelligente Küchenlüftung

Neff Spezial

Blum Zonenplaner

Weibel Abluft-Tuning

Weibel Abluft-Tuning
Zurück
Oben