Michael
Admin
- Beiträge
- 19.317
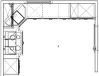
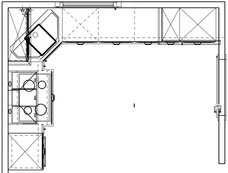
Was einem manchmal in den "Fachabteilungen" der Möbelhäuser als Küchenplanung angeboten wird ist uns ja bekannt.
Aber hier habe ich jemanden, der den Vogel richtig abgeschossen hat.
Ist übrigens keine Theorie - sondern bittere Realität
Aber hier habe ich jemanden, der den Vogel richtig abgeschossen hat.
Ist übrigens keine Theorie - sondern bittere Realität
Anhänge


