SIR_ESME
Mitglied
- Beiträge
- 43
Hallo liebe Gemeinde!
Unser Küchenkauf nähert sich seinem Höhenpunkt. Am Wochenende waren wir beim Küchenplaner unseres geringsten Misstrauens, der an der, maßgeblich mit Hilfe dieses Forums, erstellten Planung zwei Punkte bemängelte (bei denen er sicherlich grundsätzlich auch recht hat...nur stellt sich die Frage nach der Praxisrelevanz).
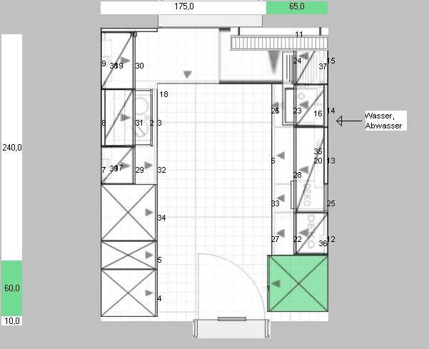
Vorab: es geht um eine U-Küche und hier die planrechte Seite. Diese besteht aus übertiefen Unterschränken mit einer Nischenhöhe von 48 cm. In einem 80er Unterschrank befindet sich linksbündig ein Induktionskochfeld und darüber in einem verkürzten Oberschrank die DAH "Berbel BEH 60 FL" (Abstand Kochfeld->DAH 61cm). Rechts neben dem DAH-Oberschrank ein Regal und links daneben ein weiterer Oberschrank. Die Oberschränke und das Regal sind weiß matt lackiert. Eine Ansicht habe ich beigefügt.
Der Verkäufer meinte nun, daß die DAH erstens immer breiter als das Kochfeld sein müsse, und das zweitens die geplante Anordnung einen Planungsfehler darstellen würde (sodaß er auch die Gewährleistung aus daraus resultierenden Schäden im Kaufvertrag ausschließen würde), weil der beim Kochen aufsteigende Wasserdampf mit der Zeit den rot markierten Bereich am Oberschrank sowie dem auf der anderen Seite befindlichen Regal beschädigen würde. Der Korpus sei nicht überall lackiert und deshalb anfällig (vor allem wegen der Temperatur des Wasserdampfes). Mag ja in der Theorie stimmen aber ist das tatsächlich ein häufiges Fehlerbild? Soviel ich weiß setzt man ja Flachschirmhauben gerne in verkürzte Oberschränke, so daß hier immer Seitenflächen des Korpus freiliegen. Und so häufig Kochen wir ja auch nicht.
Wenn außerdem die DAH immer breiter als das Kochfeld sein muss/soll? Wieso gibt es dann 60cm breite DAH? Gibt es denn tatsächlich Kochfelder mit einer Breite <60cm
Der Zweite Punkt betrifft den Verlauf der APL-Verbindung. Hier haben wir ein Stück parallel zur Abtropffläche der Spüle (APL-Verbindung in der Ansicht mit dem roten Pfeil markiert; auch wenn die Spüle auf der übertiefen Arbeitsplatte im Gegensatz zur Darstellung weiter nach hinten gesetzt werden soll).
Auch das sei ein Planungsfehler (wieder Ausschluss der Gewährleistung) weil hier zu erwarten sei, daß die APL mit der Zeit wegen der Feuchtigkeit aufquellen würde. Sicherlich grundsätzlich richtig...aber ist ein Schaden tatsächlich 100%ig vorprogrammiert? Man lässt ja auch Wasser keine Stunden auf der Fläche stehen und der zur Verbindung verwendete Holzleim ist ja wohl auch zu einem gewissen Grad wasserbeständig. Zudem ist es ja auch „nur“ die Abtropffläche und nicht der Bereich unmittelbar am Spülbecken wo sich Wasser schon mal häufiger verirrt.
Gibt es Meinungen von Experten oder vielleicht schon Leidgeprüften? An der eigentlichen Planung wollen wir eigentlich in diesem Stadium nichts mehr ändern, da sie uns sehr gut gefällt.
Gruß und Dank!
Haiko
Unser Küchenkauf nähert sich seinem Höhenpunkt. Am Wochenende waren wir beim Küchenplaner unseres geringsten Misstrauens, der an der, maßgeblich mit Hilfe dieses Forums, erstellten Planung zwei Punkte bemängelte (bei denen er sicherlich grundsätzlich auch recht hat...nur stellt sich die Frage nach der Praxisrelevanz).
Vorab: es geht um eine U-Küche und hier die planrechte Seite. Diese besteht aus übertiefen Unterschränken mit einer Nischenhöhe von 48 cm. In einem 80er Unterschrank befindet sich linksbündig ein Induktionskochfeld und darüber in einem verkürzten Oberschrank die DAH "Berbel BEH 60 FL" (Abstand Kochfeld->DAH 61cm). Rechts neben dem DAH-Oberschrank ein Regal und links daneben ein weiterer Oberschrank. Die Oberschränke und das Regal sind weiß matt lackiert. Eine Ansicht habe ich beigefügt.
Der Verkäufer meinte nun, daß die DAH erstens immer breiter als das Kochfeld sein müsse, und das zweitens die geplante Anordnung einen Planungsfehler darstellen würde (sodaß er auch die Gewährleistung aus daraus resultierenden Schäden im Kaufvertrag ausschließen würde), weil der beim Kochen aufsteigende Wasserdampf mit der Zeit den rot markierten Bereich am Oberschrank sowie dem auf der anderen Seite befindlichen Regal beschädigen würde. Der Korpus sei nicht überall lackiert und deshalb anfällig (vor allem wegen der Temperatur des Wasserdampfes). Mag ja in der Theorie stimmen aber ist das tatsächlich ein häufiges Fehlerbild? Soviel ich weiß setzt man ja Flachschirmhauben gerne in verkürzte Oberschränke, so daß hier immer Seitenflächen des Korpus freiliegen. Und so häufig Kochen wir ja auch nicht.
Wenn außerdem die DAH immer breiter als das Kochfeld sein muss/soll? Wieso gibt es dann 60cm breite DAH? Gibt es denn tatsächlich Kochfelder mit einer Breite <60cm
Der Zweite Punkt betrifft den Verlauf der APL-Verbindung. Hier haben wir ein Stück parallel zur Abtropffläche der Spüle (APL-Verbindung in der Ansicht mit dem roten Pfeil markiert; auch wenn die Spüle auf der übertiefen Arbeitsplatte im Gegensatz zur Darstellung weiter nach hinten gesetzt werden soll).
Auch das sei ein Planungsfehler (wieder Ausschluss der Gewährleistung) weil hier zu erwarten sei, daß die APL mit der Zeit wegen der Feuchtigkeit aufquellen würde. Sicherlich grundsätzlich richtig...aber ist ein Schaden tatsächlich 100%ig vorprogrammiert? Man lässt ja auch Wasser keine Stunden auf der Fläche stehen und der zur Verbindung verwendete Holzleim ist ja wohl auch zu einem gewissen Grad wasserbeständig. Zudem ist es ja auch „nur“ die Abtropffläche und nicht der Bereich unmittelbar am Spülbecken wo sich Wasser schon mal häufiger verirrt.
Gibt es Meinungen von Experten oder vielleicht schon Leidgeprüften? An der eigentlichen Planung wollen wir eigentlich in diesem Stadium nichts mehr ändern, da sie uns sehr gut gefällt.
Gruß und Dank!
Haiko
Anhänge
