GretaS
Mitglied
- Beiträge
- 5
Titel des Themas: Küche in Neubau-Mietswohnung ca 10qm
Liebe Community,
Ich bin neu hier und absolut begeistert von diesem Forum, weil dies unsere erste eigene Küche sein wird und dementsprechend die Erfahrung fehlt
. Nun hoffe ich auf eure Meinung und gute Tips 
Wir waren in noch keinem Küchenstudio , ich habe mich schon an einer Online-Planung versucht und grobe Vorstellungen haben wir schon. bezüglich der Form kommt eine U- , L-Form oder ein Zweizeiler infrage. Gerne hätten wir auch einen kleinen Sitzplatz fürs Frühstück realisiert aber in unseren Augen ist der Raum dafür zu klein. Die Wohnung verfügt über einen großen Abstellraum, d.h. in der Küche muss nicht alles untergebracht werden. Wichtig sind uns viel Arbeitsfläche, eine sinnvolle Aufteilung und einigermaßen gute Geräte die im Budget liegen. Wir bringen keine eigenen Geräte mit außerdem ist kein Schacht für eine Abzugshaube vorhanden, deswegen sollte die Umlufthaube sehr gut sein. Wir brauchen weder Karussell noch Apothekerschrank , große Schubladen scheinen am praktischsten.
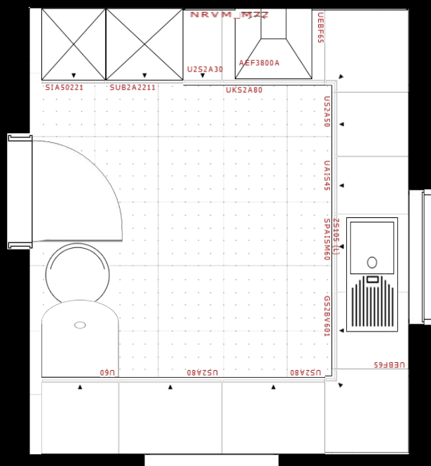
Die Zimmertür ist eine in der Wand verlaufende Glastüre, die gabs leider nicht bei Alno also habe ich einen normale Glastüre eingesetzt.
Die Tür- und Fensterlose Seite würden wir gerne mit Hochschränken bestücken, darin enthalten ein hochgebauter Backofen (Starkstromanschluss liegt an dieser Seite).
Ich habe eine Planung von Alno als U-Version angehängt, die Aufteilung erscheint mir ganz sinnvoll. Ich freue mich sehr auf Anregungen und Verbesserungsvorschläge
Die Spüle habe ich nicht ganz auf den Unterschrank drauf bekommen und eine Umlufthaube fehlt noch. Wasser- und Starkstromanschluss befinden sich im Alno-Plan rechts neben dem Ceran-Feld.
Liebe Grüße aus dem Allgäu
Greta
Checkliste zur Küchenplanung
Personenkriterien und Ergonomie
Anzahl Personen im Haushalt: 2
Davon Kinder: keine
Körpergrößen aller Hauptbenutzer in cm (wegen Arbeitshöhe ): 170, 180
Welche Arbeitshöhe ist angedacht (in cm)?:
Gebäudekriterien
Art des Gebäudes: Neu-/Umbau > Planänderungen nicht möglich
Brüstungshöhe des Fensters (in cm): 97
Fensterhöhe (in cm):
Raumhöhe in cm: 250
Heizung: Fußbodenheizung
Sanitäranschlüsse: fix
Einbaugerätekriterien
Ausführung Kühlgerät: Integriert im Hochschrank (60cm)
Einbaukühlgerät Größe: N. a.
Ausführung Tiefkühl (TK)-Gerät: Im Kühlschrank bis 2 Schubladen unten
Dunstabzugshaube: Umluft
Hochgebauter Backofen : ja
Geplante Heißgeräte: Backofen
Hochgebauter Geschirrspüler : wenn möglich
Art des Kochfeldes: Ceran (herkömmliche Beheizung)
Kochfeldbreite (ca. in cm):
Sitzmöglichkeiten
Sitzmöglichkeit in der Küche / im Küchenbereich: N. a.
Sitzmöglichkeit: Für wieviel Personen?: N. a.
Sitzmöglichkeit: Tisch - wenn gesonderter Tisch oder offene Küche: N. a.
Gewünschte oder vorhandene Tischgröße:
Wofür soll der Sitzplatz in der Küche genutzt werden und wie häufig:
Stauraumplanung
Was steht auf der Arbeitsplatte oder soll dort stehen?: Kaffeemaschine, Wasserkocher, Reiskocher
Welche weiteren Küchenmaschinen müssen in der Küche untergebracht werden: Mixer, Pürierstab
Was soll in der Küche außer den Standards untergebracht werden: Geschirr komplett (nichts in Ess-/Wohnzimmer)
Welchen Stauraum gibt es sonst noch: Speisekammer, Keller
Kochgewohnheiten
Was/wie wird gekocht? (Alltagsküche, Menüs, Snacks usw): Alltagsküche
Wie häufig wird gekocht: (fast) täglich 1x warm
Wird alleine gekocht? Oder auch gemeinsam? Mit und für Gäste?: zu zweit
Spülen und Müll
Spülenform: Noch nicht festgelegt
Welche Mülltrennung soll in der Küche vorgehalten werden: Biomüll, Gelber Sack Müll, Restmüll
Sonstiges
Steht schon ein Küchenhersteller fest oder wird bevorzugt:
Steht schon ein Gerätehersteller fest oder wird bevorzugt:
Küchenstil: Klassisch
Was stört an der bisherigen Küche und was soll die neue Küche unbedingt können? Warum?:
Preisvorstellung (Budget): 5.000 bis 7.000
Angehängte Dateien
Liebe Community,
Ich bin neu hier und absolut begeistert von diesem Forum, weil dies unsere erste eigene Küche sein wird und dementsprechend die Erfahrung fehlt
Wir waren in noch keinem Küchenstudio , ich habe mich schon an einer Online-Planung versucht und grobe Vorstellungen haben wir schon. bezüglich der Form kommt eine U- , L-Form oder ein Zweizeiler infrage. Gerne hätten wir auch einen kleinen Sitzplatz fürs Frühstück realisiert aber in unseren Augen ist der Raum dafür zu klein. Die Wohnung verfügt über einen großen Abstellraum, d.h. in der Küche muss nicht alles untergebracht werden. Wichtig sind uns viel Arbeitsfläche, eine sinnvolle Aufteilung und einigermaßen gute Geräte die im Budget liegen. Wir bringen keine eigenen Geräte mit außerdem ist kein Schacht für eine Abzugshaube vorhanden, deswegen sollte die Umlufthaube sehr gut sein. Wir brauchen weder Karussell noch Apothekerschrank , große Schubladen scheinen am praktischsten.
Die Zimmertür ist eine in der Wand verlaufende Glastüre, die gabs leider nicht bei Alno also habe ich einen normale Glastüre eingesetzt.
Die Tür- und Fensterlose Seite würden wir gerne mit Hochschränken bestücken, darin enthalten ein hochgebauter Backofen (Starkstromanschluss liegt an dieser Seite).
Ich habe eine Planung von Alno als U-Version angehängt, die Aufteilung erscheint mir ganz sinnvoll. Ich freue mich sehr auf Anregungen und Verbesserungsvorschläge
Die Spüle habe ich nicht ganz auf den Unterschrank drauf bekommen und eine Umlufthaube fehlt noch. Wasser- und Starkstromanschluss befinden sich im Alno-Plan rechts neben dem Ceran-Feld.
Liebe Grüße aus dem Allgäu
Greta
Checkliste zur Küchenplanung
Personenkriterien und Ergonomie
Anzahl Personen im Haushalt: 2
Davon Kinder: keine
Körpergrößen aller Hauptbenutzer in cm (wegen Arbeitshöhe ): 170, 180
Welche Arbeitshöhe ist angedacht (in cm)?:
Gebäudekriterien
Art des Gebäudes: Neu-/Umbau > Planänderungen nicht möglich
Brüstungshöhe des Fensters (in cm): 97
Fensterhöhe (in cm):
Raumhöhe in cm: 250
Heizung: Fußbodenheizung
Sanitäranschlüsse: fix
Einbaugerätekriterien
Ausführung Kühlgerät: Integriert im Hochschrank (60cm)
Einbaukühlgerät Größe: N. a.
Ausführung Tiefkühl (TK)-Gerät: Im Kühlschrank bis 2 Schubladen unten
Dunstabzugshaube: Umluft
Hochgebauter Backofen : ja
Geplante Heißgeräte: Backofen
Hochgebauter Geschirrspüler : wenn möglich
Art des Kochfeldes: Ceran (herkömmliche Beheizung)
Kochfeldbreite (ca. in cm):
Sitzmöglichkeiten
Sitzmöglichkeit in der Küche / im Küchenbereich: N. a.
Sitzmöglichkeit: Für wieviel Personen?: N. a.
Sitzmöglichkeit: Tisch - wenn gesonderter Tisch oder offene Küche: N. a.
Gewünschte oder vorhandene Tischgröße:
Wofür soll der Sitzplatz in der Küche genutzt werden und wie häufig:
Stauraumplanung
Was steht auf der Arbeitsplatte oder soll dort stehen?: Kaffeemaschine, Wasserkocher, Reiskocher
Welche weiteren Küchenmaschinen müssen in der Küche untergebracht werden: Mixer, Pürierstab
Was soll in der Küche außer den Standards untergebracht werden: Geschirr komplett (nichts in Ess-/Wohnzimmer)
Welchen Stauraum gibt es sonst noch: Speisekammer, Keller
Kochgewohnheiten
Was/wie wird gekocht? (Alltagsküche, Menüs, Snacks usw): Alltagsküche
Wie häufig wird gekocht: (fast) täglich 1x warm
Wird alleine gekocht? Oder auch gemeinsam? Mit und für Gäste?: zu zweit
Spülen und Müll
Spülenform: Noch nicht festgelegt
Welche Mülltrennung soll in der Küche vorgehalten werden: Biomüll, Gelber Sack Müll, Restmüll
Sonstiges
Steht schon ein Küchenhersteller fest oder wird bevorzugt:
Steht schon ein Gerätehersteller fest oder wird bevorzugt:
Küchenstil: Klassisch
Was stört an der bisherigen Küche und was soll die neue Küche unbedingt können? Warum?:
Preisvorstellung (Budget): 5.000 bis 7.000
Angehängte Dateien
Anhänge

