Küchenplanung Katastrophenküche!

Beiträge
1

Katastrophenküche!

Hallo zusammen,

wir planen gerade eine Küche für zweieinhalb Erwachsene und ein 4jähriges Kind in einem, um es vorsichtig auszudrücken, herausfordernden Raum.

Eine zentrale Anforderung ist, dass ein Tisch in dem Raum Platz finden muss, der vier Menschen Platz bietet. Außerdem brauchen wir eine ausreichend dimensionierte Kühl-Gefrierkombi (die wir im Moment notgedrungen neben die Tür gestellt haben).

Die Heizung wird neu (ver)legt, so dass wir die Position des Heizkörpers bestimmen können. Für Strom gilt das Gleiche, allerdings handelt es sich um einen Altbau, in dem traditionell mit Gas gekocht wird, so dass die Leitungen keine 360v hergeben.

Wir sind mit unserer IKEA -Planung recht weit - https://kitchen.planner.ikea.com/de/de/planner/21754662-8F2F-450D-BF7A-7383E163CB6E/ - , mit unserem Latein komplett am Ende und würden uns über konstruktiven Input freuen.

Viele Grüße,
Die Katastrophenküchenfamilie

Checkliste zur Kuechenplanung

Personenkriterien und Ergonomie
Anzahl Personen im Haushalt: 4
Davon Kinder: 1
Körpergrößen aller Hauptbenutzer in cm (wegen Arbeitshoehe): 164, 178
Welche Arbeitshöhe ist angedacht (in cm)?: 90

Gebäudekriterien
Art des Gebäudes: Bestandsbau > Umbauten ausgeschlossen, Miete
Bruestungshöhe des Fensters (in cm): 82
Fensterhöhe (in cm): 200
Raumhöhe in cm: 310
Heizung: Keine Heizung
Sanitäranschlüsse: fix (Bitte Position im Grundriss vermaßt angeben)

Einbaugerätekriterien
Ausführung Kühlgerät: Integriert im Hochschrank (60cm)
Einbaukühlgerät Größe: Noch unbekannt
Ausführung Tiefkühl (TK)-Gerät: Im Kühlschrank ab 3 Schubladen unten
Dunstabzugshaube: keine
Hochgebauter Backofen : nein
Geplante Heißgeräte: Backofen
Hochgebauter Geschirrspüler : nein
Art des Kochfeldes: Gas
Kochfeldbreite (ca. in cm): 60

Sitzmöglichkeiten
Sitzmöglichkeit in der Küche / im Küchenbereich: Separater Tisch
Sitzmöglichkeit: Für wieviel Personen?: Für 4 Personen
Sitzmöglichkeit: Tisch - wenn gesonderter Tisch oder offene Küche: Wird nach Bedarf neu gekauft
Gewünschte oder vorhandene Tischgröße:
Wofür soll der Sitzplatz in der Küche genutzt werden und wie häufig: Essen, gelegentlich als Wohnzimmererweiterung

Stauraum-Planung
Was steht auf der Arbeitsplatte oder soll dort stehen?: Kaffeemaschine, Wasserkocher, Thermomix, Messerblock, Toaster, Brotbehälter, Obstschale
Welche weiteren Küchenmaschinen müssen in der Küche untergebracht werden: Handrührgerät, Mixer, Pürierstab
Was soll in der Küche außer den Standards untergebracht werden: ALLE Vorräte, Getränkekisten, Geschirr komplett (nichts in Ess-/Wohnzimmer)
Welchen Stauraum gibt es sonst noch: Keller

Kochgewohnheiten
Was/wie wird gekocht? (Alltagsküche, Menüs, Snacks usw): Alltagsküche mit Kind, selten auch größere Menüs
Wie häufig wird gekocht: (fast) täglich 1x warm
Wird alleine gekocht? Oder auch gemeinsam? Mit und für Gäste?: Meist für 2-3-4 Personen.

Spülen und Müll
Spülenform: 1 Becken ohne Abtropffläche
Welche Mülltrennung soll in der Küche vorgehalten werden: Altglas, Altpapier, Bio/Restmüll ungetrennt

Sonstiges
Steht schon ein Küchenhersteller fest oder wird bevorzugt: IKEA
Steht schon ein Gerätehersteller fest oder wird bevorzugt:
Küchenstil: Klassisch
Was stört an der bisherigen Küche und was soll die neue Küche unbedingt können? Warum?: Alte Küche ist nicht vorhanden :-)
Preisvorstellung (Budget): Wenn möglich deutlich unter 10000 Euro

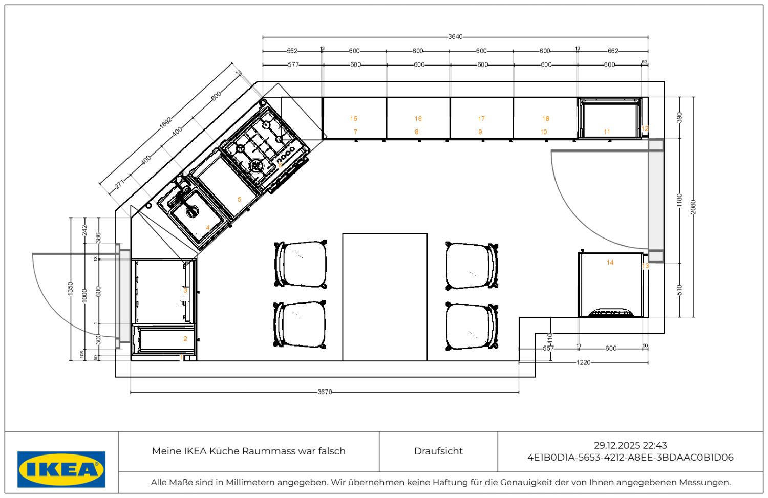
Angehängte Dateien
 

Anhänge

  • grundriss.png
    grundriss.png
    257,6 KB · Aufrufe: 136
  • 1.png
    1.png
    258,4 KB · Aufrufe: 142
  • 2.png
    2.png
    282 KB · Aufrufe: 129
  • Screenshot 2025-12-29 231201.png
    Screenshot 2025-12-29 231201.png
    574,2 KB · Aufrufe: 135
Hallo,
wäre es eine Option auf die linke Seite wenigstens normaltiefe Schränke zu stellen und den Tisch nach rechts? Wie hoch ist denn die Unterkante des Fensterflügels vom Boden?
 
Hallo und herzlich willkommen.

Könntest du noch einen Grundriss der übrigen Wohnung einstellen?

Könnte denn das Wasser auch etwas verlegen werden?
Und muss es Ikea sein? (Es gibt auch andere günstige Hersteller und bei vielen kann man auch selber aufbauen wenn das der Punkt ist. )

Ich hätte überlegt Plan unten eine Zeile zu stellen falls sich das noch mit den Tisch auf geht (klar beim Kochen müssen die Stühle rein geschoben werden. ). Das spart teure Ecken die wenig bringen..Blende-GSP -60 Spüle - 80er Schrank - 60 Herd -80er Schrank
Und neben den Kühlschrank noch einen 2 Hochschrank (50er oder 40er, 60er passt ja knapp nicht leider) .
Dazu müsste aber das Wasser auch verlegt werden.

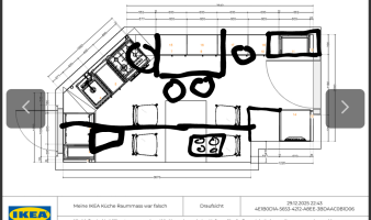
Hier mal ne ganz grobe Skizze. Hinter die Tür würde ich entweder einen Mindertiefen Unterschrank stellen oder einen Mindertiefen Hochschrank.

Hier mal ne Skizze der Idee:
 

Anhänge

  • Screenshot_20251230-062344.png
    Screenshot_20251230-062344.png
    212,2 KB · Aufrufe: 70
Zuletzt bearbeitet:
Das wird sich mit schwedischen Küchenmöbeln kaum sinnvoll realisieren lassen. Baut ihr selber auf ? Dann brauchts schon für die Ecken eine gut ausgestattete Schreinerwerkstatt.
Geht mal in einen Fachhandel und plant mit einen günstigen Küchenhersteller .Fronten in robusten günstigen Melaminharz.
Wenn möglich deutlich unter 10000 Euro
Mit oder ohne Geräte ?
 
Seid ihr euch sicher. dass der Kühlschrank neben die Tür passt, wenn dort (bis zum Türrahmen?) nur 51 cm Platz sind?
Okay, ein Möglichkeit wäre es, die Tür auszuhängen und sie gut vor Feuchte und Dreck geschützt im Keller wohnen zu lassen bis zum Auszug.
 
Ach ich sehe jetzt erst das der Wasseranschluss fix ist.
Ich hatte oben neue Heizungsverlegung und neue Stromkabel gelesen, deswegen war ich erstmal davon ausgegangen, dass das im dem Zug auch unkompliziert geht.

Zum Thema Tur aushängen: habe wir auch gemacht und bisher nicht bereut.

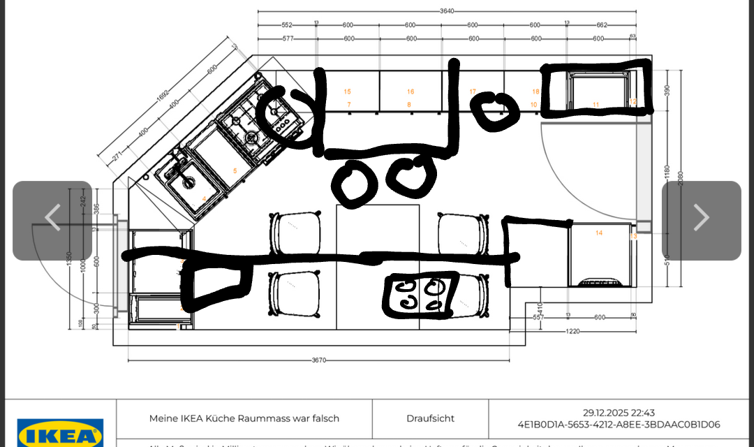
Käme für euch ein Klapptisch (Beispiel von Ikea) in Frage?

So grob hätte ich sonst in diese Richtung überlegt. Leider ist mir Planer eingefroren, ich wollte den Tisch noch drehen. Ein Teil könnte eingeklappt werden.

Untern Fenster könnte man auch den Schrank weg lassen und dort nur "freie" Arbeitsplatte als Abstellfläche hin machen und darunter den Heizkörper installieren. Alternativ müsste dieser dann hinter die Tür.
 

Anhänge

  • Screenshot 2025-12-31 073455.png
    Screenshot 2025-12-31 073455.png
    676,7 KB · Aufrufe: 65
Zuletzt bearbeitet:
Neff Hausgeräte Ballerina Küchen Blum Bewegungstechnologie Weibel - Intelligente Küchenlüftung

Neff Spezial

Blum Zonenplaner

Weibel Abluft-Tuning

Weibel Abluft-Tuning
Zurück
Oben