schwarzweiß
Mitglied
- Beiträge
- 1
Entscheidunghilfe und Ideen für 7.5m²
Hallo!
Im Zuge meiner stümperhaften Planungsiterationen bin ich natürlich auch auf dieses vortreffliche Forum gestossen. Ich grüble bereits seit Wochen über die Küche und hoffe auf Hilfe aus dem Forum um wiedermal zur Ruhe zu kommen. Zur Schonung eurer Zeit fasse ich mich kurz:
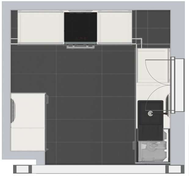
Küchengrundriss
- Wasseranschluss an der rechten Wand nähe Fenster
- Ofen ist oben mittig
- Breiter Durchgang ins Wohnzimmer bis an die Deckenhöhe
- Fenster werden Ikea -APL kompatibel eingebaut (APL als Fensterbank 88-92)
Meine Planungen:
Version A
- gefällt meiner Frau besser
Version B
<wie A nur mit durchgehenden Wandschränken über dem Herd<
Version C
Offene Fragen:
- Ich möchte die Spüle mit ~40er Becken in einen 80er Spülschrank rechts positionieren damit ich einen MUPL (~30cm) auf der linken Seite des Spülschranks realisieren kann. Geht das gut?
- Gibt es grobe Schnitzer in den beiden gezeigten Vorschlägen? (von Feinjustierungen, wie zb. Wandabstand abgesehen)
- In Version A ist vor dem Schrank in der linken oberen Ecke nur rund 60cm Platz. Die Laden werden wohl aufgehen aber vermutlich ist das zu knapp, oder? In Version C ist dort zumindest 80cm Platz.
- Version C hat m.E. die besseren (=breiteren) Schubladen, da in A die zwei kleinen 40er Schränke ein bisschen nerven.
- Bei all den Planungen bin ich bei einem U nie wirklich zufrieden gewesen, habe ich da etwas übersehen?
Vielen Dank für eure Mühen!
Gerhard
Checkliste zur Kuechenplanung
Personenkriterien und Ergonomie
Anzahl Personen im Haushalt: 4
Davon Kinder: 2
Körpergrößen aller Hauptbenutzer in cm (wegen Arbeitshoehe): 185,177
Welche Arbeitshöhe ist angedacht (in cm)?: 92
Gebäudekriterien
Art des Gebäudes: Neu-/Umbau > Planänderungen nicht möglich
Bruestungshöhe des Fensters (in cm): 88
Fensterhöhe (in cm): 130
Raumhöhe in cm: 250
Heizung: Fußbodenheizung
Sanitäranschlüsse: variabel an aktueller Wand
Einbaugerätekriterien
Ausführung Kühlgerät: Integriert im Hochschrank (60cm)
Einbaukühlgerät Größe: Noch unbekannt
Ausführung Tiefkühl (TK)-Gerät: Im Kühlschrank ab 3 Schubladen unten
Dunstabzugshaube: Umluft
Hochgebauter Backofen : nein
Geplante Heißgeräte: Backofen
Hochgebauter Geschirrspüler : nein
Art des Kochfeldes: Induktionskochfeld
Kochfeldbreite (ca. in cm): 80
Sitzmöglichkeiten
Sitzmöglichkeit in der Küche / im Küchenbereich: Keine
Sitzmöglichkeit: Für wieviel Personen?: N. a.
Sitzmöglichkeit: Tisch - wenn gesonderter Tisch oder offene Küche: N. a.
Gewünschte oder vorhandene Tischgröße: N. a.
Wofür soll der Sitzplatz in der Küche genutzt werden und wie häufig: N. a.
Stauraum-Planung
Was steht auf der Arbeitsplatte oder soll dort stehen?: Wasserkocher, Messerblock, Toaster, Brotbehälter
Welche weiteren Küchenmaschinen müssen in der Küche untergebracht werden: Küchenmaschine, Mixer, Pürierstab, Eierkocher
Was soll in der Küche außer den Standards untergebracht werden: ALLE Vorräte, Geschirr komplett (nichts in Ess-/Wohnzimmer)
Welchen Stauraum gibt es sonst noch: Hauswirtschaftsraum
Kochgewohnheiten
Was/wie wird gekocht? (Alltagsküche, Menüs, Snacks usw): Alltagsküche
Wie häufig wird gekocht: (fast) täglich 1x warm
Wird alleine gekocht? Oder auch gemeinsam? Mit und für Gäste?: Alleine, selten zu zweit
Spülen und Müll
Spülenform: 1 Becken mit Abtropffläche
Welche Mülltrennung soll in der Küche vorgehalten werden: Altglas, Altpapier, Biomüll, Gelber Sack Müll, Restmüll
Sonstiges
Steht schon ein Küchenhersteller fest oder wird bevorzugt: Ikea
Steht schon ein Gerätehersteller fest oder wird bevorzugt: Ikea, Dunstabzug evt. Miele
Küchenstil: Klassisch
Was stört an der bisherigen Küche und was soll die neue Küche unbedingt können? Warum?: Genug Stauraum damit man nicht kramen muss.
Preisvorstellung (Budget): 8000
Angehängte Dateien
Hallo!
Im Zuge meiner stümperhaften Planungsiterationen bin ich natürlich auch auf dieses vortreffliche Forum gestossen. Ich grüble bereits seit Wochen über die Küche und hoffe auf Hilfe aus dem Forum um wiedermal zur Ruhe zu kommen. Zur Schonung eurer Zeit fasse ich mich kurz:
Küchengrundriss
- Wasseranschluss an der rechten Wand nähe Fenster
- Ofen ist oben mittig
- Breiter Durchgang ins Wohnzimmer bis an die Deckenhöhe
- Fenster werden Ikea -APL kompatibel eingebaut (APL als Fensterbank 88-92)
Meine Planungen:
Version A
- gefällt meiner Frau besser
Version B
<wie A nur mit durchgehenden Wandschränken über dem Herd<
Version C
Offene Fragen:
- Ich möchte die Spüle mit ~40er Becken in einen 80er Spülschrank rechts positionieren damit ich einen MUPL (~30cm) auf der linken Seite des Spülschranks realisieren kann. Geht das gut?
- Gibt es grobe Schnitzer in den beiden gezeigten Vorschlägen? (von Feinjustierungen, wie zb. Wandabstand abgesehen)
- In Version A ist vor dem Schrank in der linken oberen Ecke nur rund 60cm Platz. Die Laden werden wohl aufgehen aber vermutlich ist das zu knapp, oder? In Version C ist dort zumindest 80cm Platz.
- Version C hat m.E. die besseren (=breiteren) Schubladen, da in A die zwei kleinen 40er Schränke ein bisschen nerven.
- Bei all den Planungen bin ich bei einem U nie wirklich zufrieden gewesen, habe ich da etwas übersehen?
Vielen Dank für eure Mühen!
Gerhard
Checkliste zur Kuechenplanung
Personenkriterien und Ergonomie
Anzahl Personen im Haushalt: 4
Davon Kinder: 2
Körpergrößen aller Hauptbenutzer in cm (wegen Arbeitshoehe): 185,177
Welche Arbeitshöhe ist angedacht (in cm)?: 92
Gebäudekriterien
Art des Gebäudes: Neu-/Umbau > Planänderungen nicht möglich
Bruestungshöhe des Fensters (in cm): 88
Fensterhöhe (in cm): 130
Raumhöhe in cm: 250
Heizung: Fußbodenheizung
Sanitäranschlüsse: variabel an aktueller Wand
Einbaugerätekriterien
Ausführung Kühlgerät: Integriert im Hochschrank (60cm)
Einbaukühlgerät Größe: Noch unbekannt
Ausführung Tiefkühl (TK)-Gerät: Im Kühlschrank ab 3 Schubladen unten
Dunstabzugshaube: Umluft
Hochgebauter Backofen : nein
Geplante Heißgeräte: Backofen
Hochgebauter Geschirrspüler : nein
Art des Kochfeldes: Induktionskochfeld
Kochfeldbreite (ca. in cm): 80
Sitzmöglichkeiten
Sitzmöglichkeit in der Küche / im Küchenbereich: Keine
Sitzmöglichkeit: Für wieviel Personen?: N. a.
Sitzmöglichkeit: Tisch - wenn gesonderter Tisch oder offene Küche: N. a.
Gewünschte oder vorhandene Tischgröße: N. a.
Wofür soll der Sitzplatz in der Küche genutzt werden und wie häufig: N. a.
Stauraum-Planung
Was steht auf der Arbeitsplatte oder soll dort stehen?: Wasserkocher, Messerblock, Toaster, Brotbehälter
Welche weiteren Küchenmaschinen müssen in der Küche untergebracht werden: Küchenmaschine, Mixer, Pürierstab, Eierkocher
Was soll in der Küche außer den Standards untergebracht werden: ALLE Vorräte, Geschirr komplett (nichts in Ess-/Wohnzimmer)
Welchen Stauraum gibt es sonst noch: Hauswirtschaftsraum
Kochgewohnheiten
Was/wie wird gekocht? (Alltagsküche, Menüs, Snacks usw): Alltagsküche
Wie häufig wird gekocht: (fast) täglich 1x warm
Wird alleine gekocht? Oder auch gemeinsam? Mit und für Gäste?: Alleine, selten zu zweit
Spülen und Müll
Spülenform: 1 Becken mit Abtropffläche
Welche Mülltrennung soll in der Küche vorgehalten werden: Altglas, Altpapier, Biomüll, Gelber Sack Müll, Restmüll
Sonstiges
Steht schon ein Küchenhersteller fest oder wird bevorzugt: Ikea
Steht schon ein Gerätehersteller fest oder wird bevorzugt: Ikea, Dunstabzug evt. Miele
Küchenstil: Klassisch
Was stört an der bisherigen Küche und was soll die neue Küche unbedingt können? Warum?: Genug Stauraum damit man nicht kramen muss.
Preisvorstellung (Budget): 8000
Angehängte Dateien
Anhänge
