3x80cm oder 4x60cm Schubladen?

foges

Mitglied
Beiträge
4
Wir bauen eine neue Küche und haben 240cm Platz für Unterschränke/Schubladen. Wir wollen einen 90cm Kochfeld in die Mitte drauflegen. Nun ist die Frage ob wir 3x80cm oder 4x60cm Schubladen einbauen sollen. Ich finde 60cm werden oft für Töpfe zu klein und finde zudem, dass 80cm breite Schubladen edler aussehen. Jedoch weiss ich nicht ob man einfach einen 90cm Kochfeld auf einer 80cm breiten Schubladen montieren kann. Was ist eure Erfahrung/Meinung?

Vielen Dank!
 
Welches Kochfeld-welche Arbeitsplattenstärke ?
 
Wahrscheinlich das CookTopInduction V6000 von V-Zug. Uns gefällt die Bedingungen und die Anordnung der Kochzonen, jedoch sind wir flexibel falls es bessere Lösung gibt.
 
Verlinke bitte das Kochfeld zur Herstellerseite.
Welche Arbeitsplattenstärke ?
Das der Dunstabzug breiter als das Kochfeld sein sollte ist dir klar ?
Wie ist das denn aktuell geplant ?
 

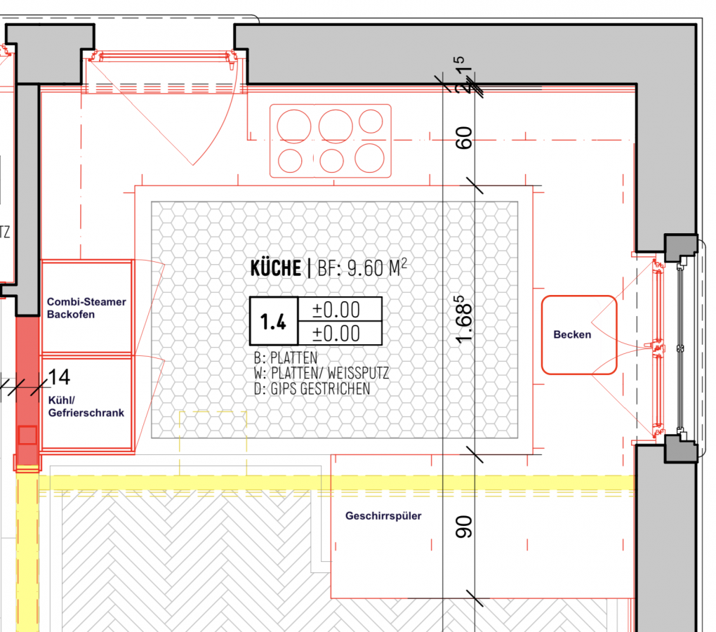
Anhänge

  • kitchen_top_view.png
    kitchen_top_view.png
    412,5 KB · Aufrufe: 159
vzug.PNG




Du solltest deinen KFB befragen !
Aufgrund der Bauhöhe und des Belüftungsbedarfs würde ich das nicht über 2 Schränke plazieren.
Du verlierst wahrscheinlich beide obere Schubkästen.
Für den Servicefall sollte das Kochfeld von unten zugänglich sein,das solltest du erfragen.
Wahrscheinlich brauchst du mindestens einen 90er Unterschrank (Hab auf die Schnelle kein aussagekräftiges Maß gefunden)damit das Feld innerhalb des Schubkastens liegt.
Die Haube sollte mindestens 1 m breit (oder breiter)sein.
 

Ähnliche Beiträge

Neff Hausgeräte Ballerina Küchen Blum Bewegungstechnologie Weibel - Intelligente Küchenlüftung

Neff Spezial

Blum Zonenplaner

Weibel Abluft-Tuning

Weibel Abluft-Tuning
Zurück
Oben