20241027_Grundriß_mit_Anschlüssen_002_korrigiert.jpg
uli1001

20241027_Grundriß_mit_Anschlüssen_002_korrigiert.jpg - Von: uli1001 - Albumtitel: Alte Küche

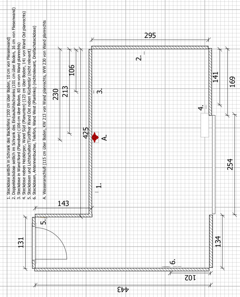
Korrigierter Grundriß, hatte leider falsch gemessen. 295 cm statt 300 planoben. Dafür stört der Heizkörper nicht mehr, der wird einfach gedreht.
Es gibt noch keine Kommentare

Bildinformationen

Album
Alte Küche
Hinzugefügt von
uli1001
hinzugefügt am
Aufrufe
259
Anzahl Kommentare
0
Bewertung
0,00 Stern(e) 0 Bewertungen
Neff Hausgeräte Ballerina Küchen Blum Bewegungstechnologie Weibel - Intelligente Küchenlüftung

Neff Spezial

Blum Zonenplaner

Weibel Abluft-Tuning

Weibel Abluft-Tuning
Zurück
Oben