logo

Menu

Login Mobile

Offene Loftküche mit extra Spülküche

F Aktualisiert 28 Dezember 2012
17444 0 12
Kommentare (1)
Offene Loftküche mit extra Spülküche
Offene Loftküche mit extra Spülküche
Offene Loftküche mit extra Spülküche
Offene Loftküche mit extra Spülküche
Offene Loftküche mit extra Spülküche
Offene Loftküche mit extra Spülküche
Offene Loftküche mit extra Spülküche
Offene Loftküche mit extra Spülküche
Offene Loftküche mit extra Spülküche
Offene Loftküche mit extra Spülküche
Offene Loftküche mit extra Spülküche
Offene Loftküche mit extra Spülküche

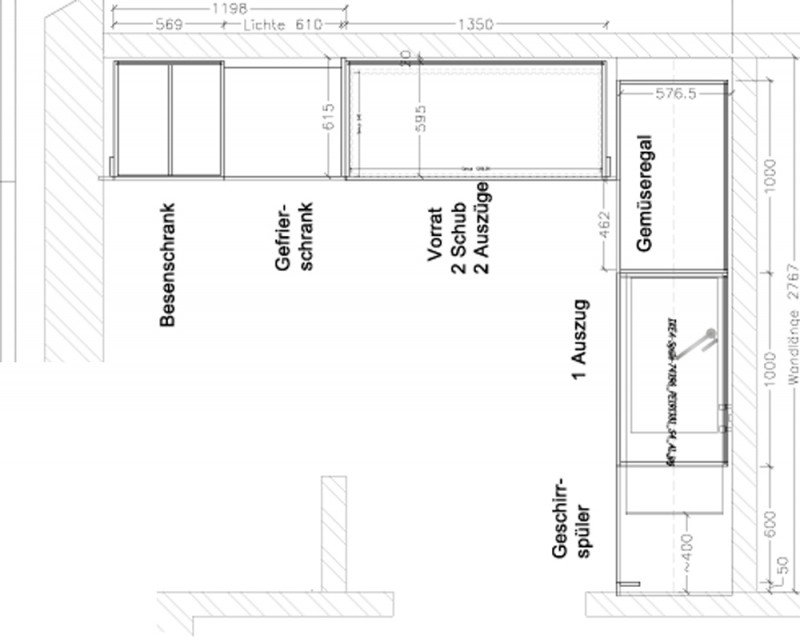
Offene Küchen sind zwar schön und kommunikativ aber leider sind sie ein optisch maßgeblicher Teil der des Wohnbereichs; und das im schönen augeräumten, aber auch im unordentlich verkochten Zustand. Das empfanden wir in unserer vorherigen Küche etwas anstrengend, denn man hatte ständig das Bedürfnis die Sachen zu verräumen. Die Lösung für uns war eine offene Küche mit Kochbereich und eine kleine Seiten- Spülküche in der "gearbeitet" wird. Dort ist die Spülmaschine, das große Waschbecken, Gefriertruhe sowie die Mülltrennung untergebracht.

Im Vorfeld haben wir uns die gängigsten Anbieter von Küchen angeschaut und am Ende waren unsere Favoriten: Siematic, Leicht, Bulthaup. Bei allen anbietern hatten wir das gleiche Problem: wir wollten innenliegende Griffleisten (also eine Grifflose Küche) aber bei allen Türen empfanden wir die Grifffläche innen zu schmal. Also musste ein Schreiner her und der hat es dann gerichtet.

Mit der Entscheidung einer Schreinerküche sind wir wirklich vollkommen zufrieden und können es bedenkenlos empfehlen. Preislich bewegt sich die Küche vergleichbar mit einer Bulthaup b3 Küche, wobei die drei großen Kühlschränke preislich recht gewichtig waren.

Material:

  • Die APL und die Inselwangen ist Silestone Blanco Kunststein
  • Die Armaturen sind von Blanco
  • Die Waschbecken sind einmal die Ceramic Ausführung von V&B und einmal Blanco (Spülküche)
  • Theke ist geräucherte Eiche
  • Innenauszüge sind lasierte Eiche


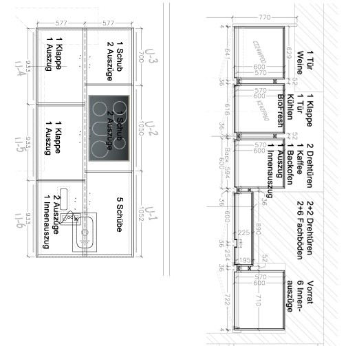
Geräteliste:

  • Kühlschrank SIEMENS KI42FP60
  • Kochstelle SIEMENS EH801SB11
  • Geschirrspüler SIEMENS SN 5611 EU
  • Backofen SIEMENS HB76AB560
  • Kaffeautomat SIEMENS TK 76 K 572
  • Gefrierschrank SIEMENS FI 24 DP 30
  • Weinkühler SIEMENS CI 24WP 00
  • Spüle V&B Cisterna 26 UB


Was absolut empfehlenswert ist:

  • die breite lange Theke, hier kann man wirklich bequem sitzen und essen
  • die elektrischen Auszüge; anfangs sehr gewöhnungsbedürftig jetzt kaum wegzudenken
  • wenn man den Platz hat: ausgliedern der Spülmaschine; verhindern rumstehendes Geschirr und lässt den Wohnraum ordentlich aussehen
  • integrierte Spülmittelspender
  • versenkbarer Wasserhahn; wenn er nicht verwendet wird, nimmt er sich optisch zurück.

 

Was ich anders machen würde:

  • das Außenbecken würde ich noch größer machen; ich wollte ursprünglich ein Gastro Trog ähnliches Becken, aber das lies sich irgendwie nicht umsetzen. Mein jetziges ist mit 2 x 35 cm für mich zu klein.
  • die Arbeitsfläche dürfte für mich 10-20 cm länger sein, bzw. das Kochfeld etwas versetzt.
  • ich würde keine Siemens Spülmaschine nehmen sondern Miele. Wir empfanden das Ergebnis bei unserer Miele deutlich besser.


Was war das Schwierigste?

Die Dinge über die man sich schier verrückt diskutiert hat, relativieren sich stark während einer Bauphase. Über die damals wichtigen Diskussionen um 10cm rechts oder links, größer oder kleiner schmunzeln wir jetzt. Der Punkt der uns am schwersten fiel war die Farbwahl. Ursprünglich sollte es Schlammgrau werden, durch ein Zufall lagen unsere Holz und Stein Muster auf einem grauen Buch und das gefiel uns beiden auf Anhieb. Die Farbe wurde dann vom Schreiner eingescannt und nachgemischt.

★ Küchenhersteller

Küchendetails

Modell
-
Datum der Fertigstellung
März 2011

Gerätedetails

Kochfeld
Siemens EH801SB11
Backofen / Einbauherd
Siemens HB76AB560
Geschirrspüler
SIEMENS SN 5611 EU (nicht empfehlenswert)
Kühlschrank
Siemens KI42FP60
Gefrierschrank
Siemens FI 24 DP 30
Dunstabzugshaube
Berbel
Mikrowelle
Siemens Standgerät
Dampfgarer
-

Küchen-Raumdetails

Küchenraum-Art
Koch-/Ess-/Wohnraum
Reine Küchengröße
13,1 bis 16 m²
Gesamtraumgröße
mehr als 45m²
Exakte Raumgröße in m²
61m²
Raumform
L-Form
Küchenform
1-Zeiler mit Insel

Planungsinfos

Benutzer-Kommentare

1 Kommentar
Eine Wow-Küche
Hallo Frau_H und Jhein,
schön, dass ihr eure Küche hier auch noch vorgestellt habt. Ganz klar, man hat hinterher immer irgendetwas, was man evtl. doch ein klein wenig anders machen würde. Ich wiederhole mich, ich finde es sehr schön, dass ihr dem Raum doch die Insel gegönnt habt und nicht wie zwischendurch in der Planungsdiskussion nur eine Halbinsel.

Gerade bei solchen Räumen wie eurem hat eine Insel doch auch mal die Möglichkeit zu wirken.

Ich wünsche euch fröhliches Küchennutzen beim Kochen, Lesen und Quatschen.

LG
Kerstin
Antwort des Verfassers 26 April 2011

Hallo Kerstn,

Du warst es also....:-) Wir haben uns erst heut morgen drüber unterhalten dass wir sehr froh sind dass wir von diesem Gedanken abgekommen sind. So ist es wirklich viel praktischer da der Gang zur Spülküche deutlich häufiger ist als gedacht und wir dadurch nicht immer außenrum müssen.

Außderdem ist die Insel immernoch sehr sehr groß!

Vielen Dank für Dein Lob.

Grüße
Karo

K