Endlich Auszüge und Ergonomie
M
menorca
Aktualisiert
02 Januar 2019
14357 0 10
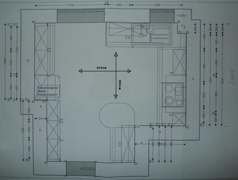
Unsere alte Küche war zur Hälfte eine geerbte Poggenpohl von 1980, die andere Hälfte ergänzt mit Ikea, und eine ergonomische Katastrophe. Die Hauptarbeit spielte sich in einem kleinen U ab, wo sich schon zwei Leute immer im Weg waren, und das in einem 5-Personen-Haushalt. Außerhalb des U ein schwerer Apothekerschrank, ein schmaler, tiefer Vorratsschrank nur mit Brettern und hohe Wandschränke, die durch einen Tisch davor kaum erreichbar waren.
Das konnte nur besser werden !
Gefordert war also eine Küche für einen Fünf-Personen-Haushalt, in der genug Platz für alles ist (keine Vorratskammer oä vorhanden), und in der man auch zu mehreren arbeiten kann. Außerdem sollte sie einen kleinen Sitzplatz haben. Ein Vermögen durfte sie auch nicht kosten, deshalb die Entscheidung für Schichtstoff und Laminat-AP statt Lack und Granit.
Bei der Neuplanung bin ich mit Glück gleich bei der ersten Beraterin an die Goldrichtige geraten (Asmo-Küchen Unterhaching bei München; ihren Namen gerne per PN). Damals hatte ich noch wenig Ahnung, aber sie hat Ideen gehabt, die richtigen Tipps gegeben, uns von manchem überzeugt und anderes ausgeredet, und hat dabei unsere Vorschläge prompt umgesetzt.
Hierher ins kuechen-forum bin ich erst später gekommen, deshalb hier auch kein thread dazu. Wer weiß, was sonst noch dabei herausgekommen wäre !
Hier also "unsere Küche":
Hersteller: Beckermann, Modell Estrada (Schichtstoff weiß glänzend, mit "Magic-Kanten"), 6-Raster.
AP: Schichtstoff Kirsche seidenmatt, Höhe 8 cm Sockelhöhe + 80 cm Unterschrankhöhe plus 4 cm AP = 92 cm (fensterbedingt)
DAH: Küppersbusch 90cm, KD9475.0E, 90 cm, Umluft, touchcontol-Bedienung (keine Knöpfe, um die ich putzen muss!). Ich bin zufrieden mit ihr.
Spüle: von systemceram, Keradomo Sinus 95, Farbe nero. Die bewährt sich super und freut mich richtig!
Armatur: Kludi Einhebelmischer Bingo Star (ich wollte einen hohen runden Hahn für die Balkongießkanne, da kamen wegen des Niederdrucksystems (Warmwasser kommt aus einem E-Boiler unten im Schrank) nicht viele in Frage).
Backofen (uralter Bosch mit Mikrowelle, Pyrolyse und Backwagen), Ceranfeld, GSP, Kühlschrank: unsere alten Geräte.
Boden: Klicklinoleum von Forbo, anthrazitfarben. Panele von 90 auf 30cm, unten Kork, Mitte Holzträgermaterial, oben 2mm Linoleum. Selber verlegt. Die Panele sind superpassgenau gearbeitet, die Fugen sind beinahe unsichtbar. Fusswarm, stehfreundlich, und die eine heruntergefallene Untertasse ist auch heil geblieben. Auf der Farbe sieht man allerdings jeden Krümel .
Sonst:
Die Vorratsschränke sind innen nur 32 cm tief und benötigen daher keine Schubladen, innenliegenden Auszüge oä. Die Höhe ist 235cm, darüber sind noch knapp 40cm Luft (Altbau, gute 270 hoch).
Der Tischfortsatz misst 60x88cm und ist für zwei (bis drei) genau richtig für einen Kaffe, ein kleines Frühstück und Gäste, die uns zuschauen wollen. Zwischen Tisch und Herd sind nur 55cm Platz, das ist gemütlich!
Wir genießen diese Familien-Küche jetzt jeden Tag, seit Juli 2008!!
Nächstes Mal: Vielleicht eine Echtholz-furnierte Front, und eine Silestone-AP?
Den Inhalt diverser Schränke lade ich in meinem Album hoch.
Das konnte nur besser werden !
Gefordert war also eine Küche für einen Fünf-Personen-Haushalt, in der genug Platz für alles ist (keine Vorratskammer oä vorhanden), und in der man auch zu mehreren arbeiten kann. Außerdem sollte sie einen kleinen Sitzplatz haben. Ein Vermögen durfte sie auch nicht kosten, deshalb die Entscheidung für Schichtstoff und Laminat-AP statt Lack und Granit.
Bei der Neuplanung bin ich mit Glück gleich bei der ersten Beraterin an die Goldrichtige geraten (Asmo-Küchen Unterhaching bei München; ihren Namen gerne per PN). Damals hatte ich noch wenig Ahnung, aber sie hat Ideen gehabt, die richtigen Tipps gegeben, uns von manchem überzeugt und anderes ausgeredet, und hat dabei unsere Vorschläge prompt umgesetzt.
Hierher ins kuechen-forum bin ich erst später gekommen, deshalb hier auch kein thread dazu. Wer weiß, was sonst noch dabei herausgekommen wäre !
Hier also "unsere Küche":
Hersteller: Beckermann, Modell Estrada (Schichtstoff weiß glänzend, mit "Magic-Kanten"), 6-Raster.
AP: Schichtstoff Kirsche seidenmatt, Höhe 8 cm Sockelhöhe + 80 cm Unterschrankhöhe plus 4 cm AP = 92 cm (fensterbedingt)
DAH: Küppersbusch 90cm, KD9475.0E, 90 cm, Umluft, touchcontol-Bedienung (keine Knöpfe, um die ich putzen muss!). Ich bin zufrieden mit ihr.
Spüle: von systemceram, Keradomo Sinus 95, Farbe nero. Die bewährt sich super und freut mich richtig!
Armatur: Kludi Einhebelmischer Bingo Star (ich wollte einen hohen runden Hahn für die Balkongießkanne, da kamen wegen des Niederdrucksystems (Warmwasser kommt aus einem E-Boiler unten im Schrank) nicht viele in Frage).
Backofen (uralter Bosch mit Mikrowelle, Pyrolyse und Backwagen), Ceranfeld, GSP, Kühlschrank: unsere alten Geräte.
Boden: Klicklinoleum von Forbo, anthrazitfarben. Panele von 90 auf 30cm, unten Kork, Mitte Holzträgermaterial, oben 2mm Linoleum. Selber verlegt. Die Panele sind superpassgenau gearbeitet, die Fugen sind beinahe unsichtbar. Fusswarm, stehfreundlich, und die eine heruntergefallene Untertasse ist auch heil geblieben. Auf der Farbe sieht man allerdings jeden Krümel .
Sonst:
Die Vorratsschränke sind innen nur 32 cm tief und benötigen daher keine Schubladen, innenliegenden Auszüge oä. Die Höhe ist 235cm, darüber sind noch knapp 40cm Luft (Altbau, gute 270 hoch).
Der Tischfortsatz misst 60x88cm und ist für zwei (bis drei) genau richtig für einen Kaffe, ein kleines Frühstück und Gäste, die uns zuschauen wollen. Zwischen Tisch und Herd sind nur 55cm Platz, das ist gemütlich!
Wir genießen diese Familien-Küche jetzt jeden Tag, seit Juli 2008!!
Nächstes Mal: Vielleicht eine Echtholz-furnierte Front, und eine Silestone-AP?
Den Inhalt diverser Schränke lade ich in meinem Album hoch.
★ Küchenhersteller
Links
Fachhändler im Küchenstudio Verzeichnis
Küchen-Raumdetails
Küchenraum-Art
Geschlossene Küche
Reine Küchengröße
10,1 bis 13 m²
Exakte Raumgröße in m²
11m²
Raumform
L-Form
Küchenform
Sonstige Form
Planungsinfos
Planungskriterien
Gerätekriterien
Benutzer-Kommentare
8 Kommentare
(Aktualisiert: 20 März 2010)
Genau, Oldenburger!!! Größe der Korpusse, Griffe, Preisgruppe: alles Punkte, die bei Nobilia echt anders sind!! Schöne Küche selber, übrigens. Mach doch selber einen Thead auf, wie wär's?
Ich habe jetzt auch noch ein Bild meiner Lieblingsspüle drangehängt. Wie konnte ich das vergessen .
LG, Menorca
Ich habe jetzt auch noch ein Bild meiner Lieblingsspüle drangehängt. Wie konnte ich das vergessen .
LG, Menorca
M
menorca
(Aktualisiert: 20 März 2010)
Hallo Sascha,
sei doch so nett und mache hier im Präsentationsforum gleich mal einen eigenen Thread auf .. lohnt sich doch .. Danke
VG
Kerstin
sei doch so nett und mache hier im Präsentationsforum gleich mal einen eigenen Thread auf .. lohnt sich doch .. Danke
VG
Kerstin
K
KerstinB
(Aktualisiert: 20 März 2010)
tja ist halt ne beckermann....geil nech ??
hab die gleiche Front in camee....und auch den gleichen griff, den 3C, den meist genommenen und das ohne mehrpreis....
achja und schichtstoff glänzend in preisgruppe 1 mit dem grössten unterschrankkorpus....eine schöne kombination....
hab die gleiche Front in camee....und auch den gleichen griff, den 3C, den meist genommenen und das ohne mehrpreis....
achja und schichtstoff glänzend in preisgruppe 1 mit dem grössten unterschrankkorpus....eine schöne kombination....
O
Oldenburger76
(Aktualisiert: 20 März 2010)
Hallo Menorca
Da schliesse ich mich gerne Nina an: das ist eine gemütliche, super Familienküche - mir gefällts
Liebe Grüsse
Vanessa
Da schliesse ich mich gerne Nina an: das ist eine gemütliche, super Familienküche - mir gefällts
Liebe Grüsse
Vanessa
N
Nice-nofret
(Aktualisiert: 20 März 2010)
Hallo Menorca,
das ist eine meiner Lieblingsküchen - eine super Planung in einem nicht ganz einfachen Raum.
Sie strahlt soviel Wärme und Gemütlichkeit aus - da sieht frau: hier wird gekocht, gelacht, gelebt ...
Auserdem finde ich es immer schön, wenn sichtbar wird, daß auch mit kleinerem Buget und einfacheren Materialien was Tolles gemacht werden kann.
Liebe Grüße von Nina
das ist eine meiner Lieblingsküchen - eine super Planung in einem nicht ganz einfachen Raum.
Sie strahlt soviel Wärme und Gemütlichkeit aus - da sieht frau: hier wird gekocht, gelacht, gelebt ...
Auserdem finde ich es immer schön, wenn sichtbar wird, daß auch mit kleinerem Buget und einfacheren Materialien was Tolles gemacht werden kann.
Liebe Grüße von Nina
J
jelena-ally
(Aktualisiert: 20 März 2010)
Danke, Ihr Zwei!
Mir geht es wie Nina, die sagt, in Natura wirkt ihr Holz nicht so "aufdringlich". In echt wirkt meine Küche auch nicht sooo bunt und unruhig wie auf den Fotos. Und das, obwohl ich vorher aufgeräumt habe .
Und die Gesamtansicht lässt die Küche um einiges größer wirken als sie ist .
LG, Menorca
Mir geht es wie Nina, die sagt, in Natura wirkt ihr Holz nicht so "aufdringlich". In echt wirkt meine Küche auch nicht sooo bunt und unruhig wie auf den Fotos. Und das, obwohl ich vorher aufgeräumt habe .
Und die Gesamtansicht lässt die Küche um einiges größer wirken als sie ist .
LG, Menorca
M
menorca
(Aktualisiert: 20 März 2010)
Juchu Menorca, ich erkenne sie wieder!
Da müssen wir irgendwann nochmal anstoßen .
Du hast recht, sie erfüllt alle Deine Vorstellungen - prima gemacht! Und Deine kleine Essecke funktioniert bestens, obwohl so wenig Platz ist. Das kann ich aus Erfahrung bestätigen!
Lieben Gruß, Ulla
Da müssen wir irgendwann nochmal anstoßen .
Du hast recht, sie erfüllt alle Deine Vorstellungen - prima gemacht! Und Deine kleine Essecke funktioniert bestens, obwohl so wenig Platz ist. Das kann ich aus Erfahrung bestätigen!
Lieben Gruß, Ulla
U
ulla
(Aktualisiert: 20 März 2010)
Hallo Menorca,
das sieht auch immer wieder schön und gemütlich aus. Und das war wirklich kein einfacher Grundriss
LG
Kerstin
das sieht auch immer wieder schön und gemütlich aus. Und das war wirklich kein einfacher Grundriss
LG
Kerstin
K
KerstinB